Võeti vastu Kalesi külas, Kastani kinnistu ja lähiala detailplaneering ja suunati avalikule väljapanekule

Raasiku Vallavalitsuse 05.02.2024 korraldusega nr 43 võeti vastu Kalesi külas, Kastani kinnistu ja lähiala detailplaneering ja suunati avalikule väljapanekule 13.03.-27.03.2024

Detailplaneeringust huvitatud isik on esitanud 29.03.2021 Raasiku Vallavalitsusele taotluse Raasiku vallas, Kalesi külas, Kastani kinnistule (65101:001:0568), mille pindala 3995 m2 ja sihtotstarve 100% maatulundusmaa detailplaneeringu algatamiseks. Raasiku Vallavolikogu 08.02.2021 otsusega nr 26 algatati Kalesi külas, Kastani kinnistul ja lähialal detailplaneeringu koostamine ja kinnitati lähteseisukohad ning jäeti algatamata keskkonnamõjude strateegiline hindamine.

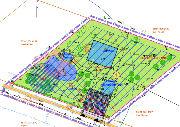
Detailplaneeringu eesmärgiks on Kalesi küla üksikelamute piirkonda Kastani kinnistule (3995 m2) kavandada 1 uus ühepereelamu ja kuni 2 abihoonet (kokku ehitusaluse pindalaga ca 400 m2) ning muuta maa sihtotstarve elamumaaks, määrata ehitusõiguse ulatus ja hoonestustingimused, lahendada juurdepääsud ning määrata vajalikud servituudid, liikluskorraldus, tehnovõrkudega varustamine ja haljastustingimused. Planeeritava ala suurus koos lähialaga on ligikaudu 4700 m2.

Kastani kinnistul ei ole hoonestust ega varem kehtestatud detailplaneeringuid. Planeeringu ala asub tiheasustuse ja hajaasustuse piiril (üldplaneeringus ei ole piir määratud katastriüksuse täpsusega), kus lähiümbruse kinnistutel on olemasolevad elumajad. Planeeritavale alale on juurdepääs avaliku kasutusega Kadarpiku teelt. Detailplaneeringu elluviimine on piirkonnale iseloomulik ja sellega ei kaasne negatiivseid majanduslikke, sotsiaalseid ja kultuurilisi ega negatiivset mõju looduskeskkonnale.

Planeeringu elluviimine annab antud alale tervikliku ruumilahenduse ja kinnistu omanikule hea elukeskkonna.

Detailplaneeringuga kavandatud tegevused on kooskõlas Raasiku Vallavolikogu 26. mai 2020. a otsusega nr 24 kehtestatud Raasiku valla üldplaneeringuga. 

Tuginedes Raasiku Vallavolikogu 13. veebruari 2018. a otsusele nr 13 „Seadusega kohaliku omavalitsuse pädevusse antud küsimuste lahendamise otsustusõiguse volitamine Raasiku Vallavalitsusele" kuulub üldplaneeringule vastava detailplaneeringu vastuvõtmine vallavalitsuse pädevusse.

Kalesi külas, Kastani kinnistu ja lähiala detailplaneeringu avaliku väljapaneku käigus 13.03.- 27.03.2024 on kavandatava kohta võimalik kõigil arvamust avaldada. Ettepanekuid saab esitada Raasiku Vallavalitsusele kirjalikult e-posti aadressil raasiku.vald@raasiku.ee või kirjaga Tallinna mnt 24, Aruküla, Harjumaa, 75201.

Materjalidega on võimalik tutvuda avalikus dokumendiregistris:

https://atp.amphora.ee/raasikuvv/index.aspx?itm=189578

ning paberkandjal Raasiku Vallavalitsuses, Aruküla alevikus, Tallinna mnt 24, eelneval kokkuleppel kantseleiga.

Kastani DP põhijoonis
Kastani DP seletuskiri
Raasiku Vallavalitsuse 5. veebruar 2024. a korraldus nr 43 Kalesi külas, Kastani kinnistu ja lähiala detailplaneeringu vastuvõtmine ja avalikustamine