Raasiku aleviku keskala detailplaneeringu eskiis arvamuste avaldamiseks

Raasiku vallavalitsuse eestvedamisel toimus 7. mail 2025 Raasiku rahvamajas Raasiku aleviku keskala detailplaneeringu eskiisi avalik tutvustus. Ootame Teie arvamusi 29. maini 2025 aadressil raasiku.vald@raasiku.ee.

 

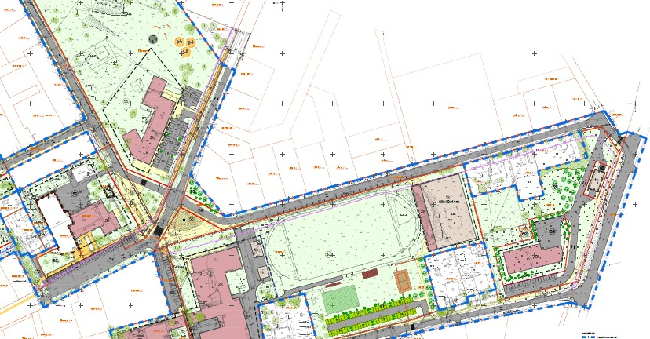
Raasiku DPE_DP-03-1 Põhijoonis
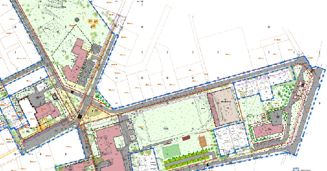
Raasiku DPE_DP-03-2 Põhijoonis
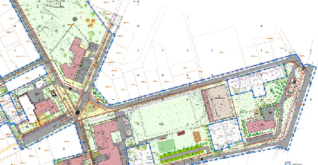
Raasiku DPE_DP-03-3 Põhijoonis