Aruküla-Kalesi kergtee avamine toimub 18.10.2025 kell 11.00. Kogunemine Jetoili parklas.

Avatakse Aruküla-Kalesi kergliiklustee

Aruküla-Kalesi kergtee avamine toimub 18.10.2025 kell 11.00. Kogunemine Jetoili parklas.

Raasiku Vallavolikogu istung toimub 14. oktoobril 2025. a algusega kell 16.30 Arukülas, Raasiku vallamaja 2. korruse koosolekute saalis  Istungi päevakord ja eelnõud

Volikogu istung 14.10.2025

Raasiku Vallavolikogu istung toimub 14. oktoobril 2025. a algusega kell 16.30 Arukülas, Raasiku vallamaja 2. korruse koosolekute saalis  Istungi päevakord ja eelnõud

Valimisdebatt Aruküla rahvamajas toimub 8.oktoobril. Otseülekannet debatist näeb siit.

Valimisdebatt Aruküla rahvamajas

Valimisdebatt Aruküla rahvamajas toimub 8.oktoobril. Otseülekannet debatist näeb siit.

Aruküla alevikus Tallinna mnt 21 kinnistul (katastritunnusega 65101:003:0597) soovitakse seadustada ehitusloakohustuslik abihoone, mis on püstitatud detailplaneeringuga määratud hoonestusalast...

Aruküla aleviku Tallinna mnt 21 kinnistu projekteerimistingimuste avalik väljapanek detailplaneeringuga määratud hoonestusala suurendamiseks ja abihoone püstitamiseks

Aruküla alevikus Tallinna mnt 21 kinnistul (katastritunnusega 65101:003:0597) soovitakse seadustada ehitusloakohustuslik abihoone, mis on püstitatud detailplaneeringuga määratud hoonestusalast...

Noorte heaolu spetsialisti peamised tööülesanded on:

Raasiku vallavalitsus pakub tööd noorte heaolu spetsialistile

Noorte heaolu spetsialisti peamised tööülesanded on:

Ametikoha eesmärk on: Raasiku valla haridus- ja kultuurivaldkonna alaste tegevuste korraldamine, valdkondlike analüüside, arengusuundade ja eesmärkide kavandamine ning elluviimine.  ...

Raasiku vallavalitsus pakub tööd haridus- ja kultuurispetsialistile

Ametikoha eesmärk on: Raasiku valla haridus- ja kultuurivaldkonna alaste tegevuste korraldamine, valdkondlike analüüside, arengusuundade ja eesmärkide kavandamine ning elluviimine.  ...

Alates  1. oktoobrist  alustab endise Aruküla ambulatooriumi asemel tööd  Sinu Arsti Aruküla Tervisekeskus . Pereõed, keda juba tunnete ja usaldate, jätkavad oma tööd...

Sinu Arst kliinikud annab teada arstiabi korraldusest Arukülas

Alates  1. oktoobrist  alustab endise Aruküla ambulatooriumi asemel tööd  Sinu Arsti Aruküla Tervisekeskus . Pereõed, keda juba tunnete ja usaldate, jätkavad oma tööd...

Raasiku Vallavalitsus teatab, et algatas 15. septembril 2025 korraldusega nr. 342 Raasiku alevikus, Raasiku aleviku keskala detailplaneeringu.   Detailplaneeringu algataja,...

Raasiku Vallavalitsus algatas Raasiku aleviku keskala detailplaneeringu.

Raasiku Vallavalitsus teatab, et algatas 15. septembril 2025 korraldusega nr. 342 Raasiku alevikus, Raasiku aleviku keskala detailplaneeringu.   Detailplaneeringu algataja,...

Kuigi sügisesed ilmad on veidi jahedamad, pole veel õige aeg võõrnälkjate – hispaania teeteo ja mustpeanälkja – tõrjet lõpetada. Nälkjad toimetavad ka sügisel, kuni ilmad pole veel külmaks...

Võõrnälkjate tõrjega on vaja jätkata ka sügisel

Kuigi sügisesed ilmad on veidi jahedamad, pole veel õige aeg võõrnälkjate – hispaania teeteo ja mustpeanälkja – tõrjet lõpetada. Nälkjad toimetavad ka sügisel, kuni ilmad pole veel külmaks...

Raasiku Vallavalitsus viib läbi kirjaliku enampakkumine Raasiku vallas Raasiku alevikus, Tallinna mnt 19 (Raasiku Tervisekeskus) asuva apteegiruumi üürile andmiseks ajavahemikul 25.10.2025 kuni...

Enampakkumise korraldamine vallavara üürile andmiseks

Raasiku Vallavalitsus viib läbi kirjaliku enampakkumine Raasiku vallas Raasiku alevikus, Tallinna mnt 19 (Raasiku Tervisekeskus) asuva apteegiruumi üürile andmiseks ajavahemikul 25.10.2025 kuni...

Raasiku Vallavalitsus algatas 15. septembril 2025 korraldusega nr. 335 Aruküla alevikus ja Kurgla külas Haavamäe katastriüksusel ja lähialal „Haavamäe" detailplaneeringu. Detailplaneeringuga...

Raasiku Vallavalitsus algatas Aruküla alevikus ja Kurgla külas Haavamäe katastriüksusel ja lähialal „Haavamäe“ detailplaneeringu.

Raasiku Vallavalitsus algatas 15. septembril 2025 korraldusega nr. 335 Aruküla alevikus ja Kurgla külas Haavamäe katastriüksusel ja lähialal „Haavamäe" detailplaneeringu. Detailplaneeringuga...

Tugiisiku ülesanneteks on: lapse toetamine õppetegevusel lasteaias, sh. lapse juhendamine ja motiveerimine, tähelepanu hoidmine, füüsiline abistamine, lapse toetamine eakaaslaste ja...

Raasiku vallavalitsus otsib tugiisikut 4-aastasele poisile

Tugiisiku ülesanneteks on: lapse toetamine õppetegevusel lasteaias, sh. lapse juhendamine ja motiveerimine, tähelepanu hoidmine, füüsiline abistamine, lapse toetamine eakaaslaste ja...

Aruküla filiaali avamine Alates 01.06.2025 alustas Sinu Arsti Tervisekeskus perearstiabi pakkumist Raasiku valla rahvale. Tegevuskohtadeks on Tallinnas Pärnu mnt. 113 asuv Sinu Arsti...

Sinu Arsti Tervisekeskus alustas perearstiabi pakkumist Raasiku valla rahvale

Aruküla filiaali avamine Alates 01.06.2025 alustas Sinu Arsti Tervisekeskus perearstiabi pakkumist Raasiku valla rahvale. Tegevuskohtadeks on Tallinnas Pärnu mnt. 113 asuv Sinu Arsti...

Raasiku Valla valimiskomisjoni koosolek kandidaatide registreerimiseks ja liisuheitmise läbiviimiseks toimub vallamaja 2. korruse saalis  12. septembril algusega 12.00.   ...

Raasiku Valla valimiskomisjoni koosolek toimub 12. septembril

Raasiku Valla valimiskomisjoni koosolek kandidaatide registreerimiseks ja liisuheitmise läbiviimiseks toimub vallamaja 2. korruse saalis  12. septembril algusega 12.00.   ...

Ettevõtluse ja Innovatsiooni Sihtasutus avab 8. septembril 2025 kell 11.00 lasterikaste perede kodutoetuse taotlusvooru. Voor on avatud kuni 20. oktoobrini 2025 kell 23.59. Taotlusi...

8. septembril avaneb lasterikaste perede kodutoetuse taotlusvoor

Ettevõtluse ja Innovatsiooni Sihtasutus avab 8. septembril 2025 kell 11.00 lasterikaste perede kodutoetuse taotlusvooru. Voor on avatud kuni 20. oktoobrini 2025 kell 23.59. Taotlusi...

Raasiku Vallavolikogu istung toimub 10. septembril 2025. a algusega kell 16.30 Arukülas, Raasiku vallamaja 2. korruse koosolekute saalis. Istungi päevakord ja eelnõud

Volikogu istung toimub 10. septembril

Raasiku Vallavolikogu istung toimub 10. septembril 2025. a algusega kell 16.30 Arukülas, Raasiku vallamaja 2. korruse koosolekute saalis. Istungi päevakord ja eelnõud

Avanenud on Raasiku valla eelarvest toetuste taotlemise voor kultuuri-, noorsoo- ja spordiprogrammide, elukeskkonna arendamise ja kohaliku omaalgatuse edendamiseks. Toetust...

Avanenud on Raasiku valla eelarvest toetuste taotlemise voor

Avanenud on Raasiku valla eelarvest toetuste taotlemise voor kultuuri-, noorsoo- ja spordiprogrammide, elukeskkonna arendamise ja kohaliku omaalgatuse edendamiseks. Toetust...

Kalesi külas asuva Kumma  (65101:003:0553)  ja Kaasiku  (65101:003:0552)  katastriüksuste ja lähiala detailplaneeringu vastuvõtmine ja avaliku väljapaneku korraldamine. ...

Kalesi külas asuva Kumma ja Kaasiku katastriüksuste ja lähiala detailplaneeringu vastuvõtmine ja avaliku väljapaneku korraldamine

Kalesi külas asuva Kumma  (65101:003:0553)  ja Kaasiku  (65101:003:0552)  katastriüksuste ja lähiala detailplaneeringu vastuvõtmine ja avaliku väljapaneku korraldamine. ...

Raasiku Vallavalitsus otsustab võtta vastu ja avalikustada Aruküla alevikus   asuva "  Võidu 9 katastriüksuse ja lähiala  " detailplaneeringu (koostaja: Arhitektuuribüroo...

Aruküla alevikus asuva Võidu 9 katastriüksuse ja lähiala detailplaneeringu vastuvõtmine ja avaliku väljapaneku korraldamine

Raasiku Vallavalitsus otsustab võtta vastu ja avalikustada Aruküla alevikus   asuva "  Võidu 9 katastriüksuse ja lähiala  " detailplaneeringu (koostaja: Arhitektuuribüroo...

Raasiku Vallavalitsus teatab, et Raasiku Vallavalitsuse 01. septembri 2025. a korraldusega nr 313 kehtestati Aruküla alevikus asuva Männiku tee 27 katastriüksuse ja lähiala detailplaneering. ...

Kehtestati Aruküla alevikus asuva Männiku tee 27 katastriüksuse ja lähiala detailplaneering

Raasiku Vallavalitsus teatab, et Raasiku Vallavalitsuse 01. septembri 2025. a korraldusega nr 313 kehtestati Aruküla alevikus asuva Männiku tee 27 katastriüksuse ja lähiala detailplaneering. ...

Raasiku Vallavalitsus kutsub teid üles õpetajate päeva üritusel välja antava tunnustusavalduse - aasta haridustegu - kandidaate esitama. Aasta haridustegu - nimetus omistatakse vallaga...

Raasiku vallavalitsus kutsub üles esitama kandidaate aasta haridusteo nimetuse omistamiseks

Raasiku Vallavalitsus kutsub teid üles õpetajate päeva üritusel välja antava tunnustusavalduse - aasta haridustegu - kandidaate esitama. Aasta haridustegu - nimetus omistatakse vallaga...

Elron teavitab teavitab kahetsusega, et seoses Eesti Raudtee teatega, et Tapa jaamas ei saa tööd valmis 1. septembriks, siis lükatakse 1. septembrii sõiduplaani muudatus edasi 21. septembrini. ...

Elron teavitab sõiduplaani muudatuse edasilükkamisest

Elron teavitab teavitab kahetsusega, et seoses Eesti Raudtee teatega, et Tapa jaamas ei saa tööd valmis 1. septembriks, siis lükatakse 1. septembrii sõiduplaani muudatus edasi 21. septembrini. ...

Koolitus sobib sulle, kui tahad teada, kuidas:   •kuulata last nii, et ta sooviks enda mõtteid jagada. • vanemana jaksata ja enda vajaduste eest seista. • kasvatada lastes...

17. septembril on alustamas uus Gordoni suhtlustreeningu grupp

Koolitus sobib sulle, kui tahad teada, kuidas:   •kuulata last nii, et ta sooviks enda mõtteid jagada. • vanemana jaksata ja enda vajaduste eest seista. • kasvatada lastes...

Aruküla Huvialakeskus Pääsulind 2025/2026 õppeaasta avaaktuste toimumisajad Raasiku filiaali aktus 03.09. kell 18.00 Raasiku Rahvamajas Aruküla aktused toimuvad 04.09....

Aruküla Huvialakeskus Pääsulind 2025/2026 õppeaasta avaaktused

Aruküla Huvialakeskus Pääsulind 2025/2026 õppeaasta avaaktuste toimumisajad Raasiku filiaali aktus 03.09. kell 18.00 Raasiku Rahvamajas Aruküla aktused toimuvad 04.09....

Balti jaam post 1 alt väljuvad liinid – Peetri, Jüri, Aruküla 121, 162, 120, 120A, 121, 125, 125A, 132, 132A, 134, 135, 135A, 135C Balti jaam post 2 alt väljuvad liinid – Vaida,...

Alates 01. septembrist muutuvad Balti jaama algpeatustes maakonna avalike liinide väljumiskohad

Balti jaam post 1 alt väljuvad liinid – Peetri, Jüri, Aruküla 121, 162, 120, 120A, 121, 125, 125A, 132, 132A, 134, 135, 135A, 135C Balti jaam post 2 alt väljuvad liinid – Vaida,...

2025/2026 õppeaasta 1. septembri avaaktused Raasiku valla munitsipaalkoolides: Pikavere Mõisakoolis: Kogu koolipere aktus kell  9.00  Aruküla...

1. septembri avaaktused Raasiku valla munitsipaalkoolides

2025/2026 õppeaasta 1. septembri avaaktused Raasiku valla munitsipaalkoolides: Pikavere Mõisakoolis: Kogu koolipere aktus kell  9.00  Aruküla...

Talve tee 3 kinnistule (katastritunnusega 65101:003:0710) soovitakse ehitada üksikelamu. Vastavalt Raasiku valla üldplaneeringule on tegemist Aruküla Männiku I alal asuva elamumaa...

Aruküla alevikus Talve tee 3 kinnistu projekteerimistingimuste avalik väljapanek üksikelamu ehitamiseks

Talve tee 3 kinnistule (katastritunnusega 65101:003:0710) soovitakse ehitada üksikelamu. Vastavalt Raasiku valla üldplaneeringule on tegemist Aruküla Männiku I alal asuva elamumaa...

Kadarpiku tee 6 kinnistule (katastritunnusega 65101:001:1154) soovitakse ehitada üksikelamu. Kadarpiku tee 6 kinnistu asub hoonestatud kinnistute kõrval ning sobitub kinnistu suuruselt antud...

Kalesi külas Kadarpiku tee 6 kinnistu projekteerimistingimuste avalik väljapanek üksikelamu ehitamiseks

Kadarpiku tee 6 kinnistule (katastritunnusega 65101:001:1154) soovitakse ehitada üksikelamu. Kadarpiku tee 6 kinnistu asub hoonestatud kinnistute kõrval ning sobitub kinnistu suuruselt antud...

Lusikapidu ajavahemikul 23.08.2024 - 08.08.2025 sündinud lastele ja nende peredele toimub 6. septembril

Lusikapidu toimub 6. septembril

Lusikapidu ajavahemikul 23.08.2024 - 08.08.2025 sündinud lastele ja nende peredele toimub 6. septembril

Raasiku valla volikogu ja vallavalitsus kutsuvad Teid osalema Raasiku valla arengukava 2025–2035 avalikul tutvustamisel. Tutvustuse ajakava ja toimumiskohad: 21. august 2025 kell...

Kutse Raasiku valla arengukava 2025–2035 avalikule tutvustamisele

Raasiku valla volikogu ja vallavalitsus kutsuvad Teid osalema Raasiku valla arengukava 2025–2035 avalikul tutvustamisel. Tutvustuse ajakava ja toimumiskohad: 21. august 2025 kell...

Raasiku Vallavalitsus teatab, et algatas 04. augustil 2025 korraldusega nr. 277 Igavere külas, Kasteheina ja Piipheina katastriüksuste ja lähiala detailplaneeringu. Detailplaneeringuga...

Kasteheina ja Piipheina katastriüksuste ja lähiala detailplaneeringu algatamine

Raasiku Vallavalitsus teatab, et algatas 04. augustil 2025 korraldusega nr. 277 Igavere külas, Kasteheina ja Piipheina katastriüksuste ja lähiala detailplaneeringu. Detailplaneeringuga...

Raasiku Vallavolikogu istung toimub 11. augustil 2025. a algusega kell 16.30 Arukülas, Raasiku vallamaja 2. korruse koosolekute saalis.

Volikogu istung toimub 11. augustil

Raasiku Vallavolikogu istung toimub 11. augustil 2025. a algusega kell 16.30 Arukülas, Raasiku vallamaja 2. korruse koosolekute saalis.

Maa- ja Ruumiamet on välja kuulutanud avaliku elektroonilise enampakkumise piirkonnas (sh ka Raasiku vallas)   asuvate põllumajandusmaade kasutamiseks andmiseks. Pakkumiste esitamise...

Avatud riigile kuuluvate põllumajandusmaade rendile andmise oksjon

Maa- ja Ruumiamet on välja kuulutanud avaliku elektroonilise enampakkumise piirkonnas (sh ka Raasiku vallas)   asuvate põllumajandusmaade kasutamiseks andmiseks. Pakkumiste esitamise...

Harju Ettevõtlus- ja Arenduskeskus kutsub osalema Harju-, Rapla- ja Läänemaa DMO tellitud kohalike elanike uuringus  "Mida arvad sina turismist oma kodukohas?" , uuringuperiood...

Osale HEAK turismipiirkonna uuringus

Harju Ettevõtlus- ja Arenduskeskus kutsub osalema Harju-, Rapla- ja Läänemaa DMO tellitud kohalike elanike uuringus  "Mida arvad sina turismist oma kodukohas?" , uuringuperiood...

Projekti „Raasiku mänguväljaku laiendamine ja edasiarendamine" eesmärk oli luua turvaline, ligipääsetav ja mitmekesiste tegevusvõimalustega pereväljak, kus erinevas vanuses lastel oleks ruumi...

Raasiku vallavalitsus arendas LEADER – kogukonna juhitud kohalik areng meetme toetuse abiga Raasiku mänguväljakut.

Projekti „Raasiku mänguväljaku laiendamine ja edasiarendamine" eesmärk oli luua turvaline, ligipääsetav ja mitmekesiste tegevusvõimalustega pereväljak, kus erinevas vanuses lastel oleks ruumi...

Tugiisiku ülesanneteks on: lapse toetamine õppetegevusel, sh. lapse juhendamine ja motiveerimine, tähelepanu hoidmine, lapse toetamine eakaaslaste ja õpetajatega suhtlemisel, järelevalve...

Raasiku vallavalitsus otsib tugiisikut 8-aastasele poisile.

Tugiisiku ülesanneteks on: lapse toetamine õppetegevusel, sh. lapse juhendamine ja motiveerimine, tähelepanu hoidmine, lapse toetamine eakaaslaste ja õpetajatega suhtlemisel, järelevalve...

Raasiku Vallavolikogu 18. novembri 2024 korraldusega nr. 443  algatati Aruküla alevikus, Suvila tn 25 katastriüksuse ja lähiala detailplaneeringu koostamine ning kinnitati lähteseisukohad....

Raasiku Vallavalitsus teatab, et Raasiku Vallavalitsuse 07. juuli 2025. a korraldusega nr 237 kehtestati Aruküla alevikus asuva Suvila tn 25 katastriüksuse ja lähiala detailplaneering.

Raasiku Vallavolikogu 18. novembri 2024 korraldusega nr. 443  algatati Aruküla alevikus, Suvila tn 25 katastriüksuse ja lähiala detailplaneeringu koostamine ning kinnitati lähteseisukohad....

01. maini – 30. maini 2025 toimus Järsi külas asuva "Riisimäe katastriüksuse ja lähiala" detailplaneeringu eskiisi (koostaja: OÜ Ilm Arhitekt, töö nr 0324, planeeringu ID 127431) avalik...

Info

01. maini – 30. maini 2025 toimus Järsi külas asuva "Riisimäe katastriüksuse ja lähiala" detailplaneeringu eskiisi (koostaja: OÜ Ilm Arhitekt, töö nr 0324, planeeringu ID 127431) avalik...

Pistriku vkt 28 kinnistule (katastritunnusega 65101:002:0474) Kulli külas soovitakse anda ehitusõigus kaksikelamu püstitamiseks. Vastavalt  Raasiku valla üldplaneeringule on tegemist...

Kulli küla Pistriku vkt 28 kinnistu projekteerimistingimuste avalik väljapanek kaksikelamu püstitamiseks

Pistriku vkt 28 kinnistule (katastritunnusega 65101:002:0474) Kulli külas soovitakse anda ehitusõigus kaksikelamu püstitamiseks. Vastavalt  Raasiku valla üldplaneeringule on tegemist...

Head vallakodanikud! Ootame teie sisulisi ettepanekuid Raasiku valla arengukava 2025–2035 kohta. Ettepanekud võivad olla sisulised täiendused, muudatusettepanekud eesmärkide või...

Vallavalitsus ootab ettepanekuid Raasiku valla arengukava 2025–2035 kohta

Head vallakodanikud! Ootame teie sisulisi ettepanekuid Raasiku valla arengukava 2025–2035 kohta. Ettepanekud võivad olla sisulised täiendused, muudatusettepanekud eesmärkide või...

Riigihangete registris avaldati 30.06.2025 15:00 järgmine teade: Hanketeade hanke 297410, "„Arvutite ostmine Raasiku Vallavalitsusele ja hallatavatele asutustele"" kohta. Link...

Hanketeade hanke „Arvutite ostmine Raasiku Vallavalitsusele ja hallatavatele asutustele“ kohta.

Riigihangete registris avaldati 30.06.2025 15:00 järgmine teade: Hanketeade hanke 297410, "„Arvutite ostmine Raasiku Vallavalitsusele ja hallatavatele asutustele"" kohta. Link...

Riigihangete registris avaldati 30.06.2025 15:00 järgmine teade: Hanketeade hanke 297402, „Toiduainete ost Raasiku valla haridusasutustele õ/a 2025-2026 ning 2026/2027" kohta. Link...

Hanketeade hanke „Toiduainete ost Raasiku valla haridusasutustele õ/a 2025-2026 ning 2026/2027”

Riigihangete registris avaldati 30.06.2025 15:00 järgmine teade: Hanketeade hanke 297402, „Toiduainete ost Raasiku valla haridusasutustele õ/a 2025-2026 ning 2026/2027" kohta. Link...

Riigihangete registris avaldati 30.06.2025 15:00 järgmine teade: Hanketeade hanke 297408, "„Akustiliste toolide ja seisulaudade ost Raasiku kooli"" kohta. Link hanketeatele:  ...

Hanketeade hanke "Akustiliste toolide ja seisulaudade ost Raasiku kooli“ kohta.

Riigihangete registris avaldati 30.06.2025 15:00 järgmine teade: Hanketeade hanke 297408, "„Akustiliste toolide ja seisulaudade ost Raasiku kooli"" kohta. Link hanketeatele:  ...

Raasiku Vallavolikogu kehtestas 10.06.2025 määrusega nr 8 järgmised maamaksumäärad: 1) elamumaale ja maatulundusmaa õuemaa kõlvikule 0,50% maa maksustamishinnast aastas; 2) punktis 1...

Raasiku Vallavolikogu kehtestas 2026.a. maamaksumäärad

Raasiku Vallavolikogu kehtestas 10.06.2025 määrusega nr 8 järgmised maamaksumäärad: 1) elamumaale ja maatulundusmaa õuemaa kõlvikule 0,50% maa maksustamishinnast aastas; 2) punktis 1...

R aasiku Vallavalitsus teatab, et  Raasiku Vallavolikogu 10. juuni 2025. a korraldusega nr 17 algatati Järsi külas asuva Unioru, Unimäe katastriüksuste ning lähiala detailplaneering. ...

Algatati Järsi külas asuva Unioru, Unimäe katastriüksuste ning lähiala detailplaneering

R aasiku Vallavalitsus teatab, et  Raasiku Vallavolikogu 10. juuni 2025. a korraldusega nr 17 algatati Järsi külas asuva Unioru, Unimäe katastriüksuste ning lähiala detailplaneering. ...

29.05. – 12.06.2025 toimus Aruküla alevikus Männiku tee 27 katastriüksuse ja lähiala detailplaneeringu (koostaja: Raasiku Vallavalitsus, Indrek Mikk volitatud arhitekt, tase 7, töö nr...

Kutse avalikule aruelule

29.05. – 12.06.2025 toimus Aruküla alevikus Männiku tee 27 katastriüksuse ja lähiala detailplaneeringu (koostaja: Raasiku Vallavalitsus, Indrek Mikk volitatud arhitekt, tase 7, töö nr...

Riigihangete registris avaldati 16.06.2025 15:00 järgmine teade: Hanketeade hanke 296892, "Pikavere Mõisakooli teise korruse puitlaudpõrandate taastusremont" kohta. Link hanketeatele: ...

Hanketeade hanke "Pikavere Mõisakooli teise korruse puitlaudpõrandate taastusremont" kohta.

Riigihangete registris avaldati 16.06.2025 15:00 järgmine teade: Hanketeade hanke 296892, "Pikavere Mõisakooli teise korruse puitlaudpõrandate taastusremont" kohta. Link hanketeatele: ...

Riigihangete registris avaldati 16.06.2025 15:00 järgmine teade: Hanketeade hanke 296130, "Pikavere Mõisakooli pargi hooldus" kohta. Link hanketeatele: ...

Hanketeade hanke "Pikavere Mõisakooli pargi hooldus" kohta.

Riigihangete registris avaldati 16.06.2025 15:00 järgmine teade: Hanketeade hanke 296130, "Pikavere Mõisakooli pargi hooldus" kohta. Link hanketeatele: ...

Vastavalt Raasiku Vallavolikogu 14.11.2023 määruse nr 17 „Kohanime määramise kord" § 4 lõikele 1 avalikustab Raasiku Vallavalitsus eelnõu „Raasiku vallas Järsi külas asuvate liikluspindade...

Liikluspindade ruumikuju ja kohanime määramine, katastriüksuste ja ehitiste lähiaadresside korrastamine

Vastavalt Raasiku Vallavolikogu 14.11.2023 määruse nr 17 „Kohanime määramise kord" § 4 lõikele 1 avalikustab Raasiku Vallavalitsus eelnõu „Raasiku vallas Järsi külas asuvate liikluspindade...

Raasiku Vallavalitsus teatab, et Raasiku Vallavalitsuse 26. mai 2025. a korraldusega nr 183 kehtestati Raasiku alevikus asuva Pae 2a katastriüksuse ja lähiala detailplaneering. Raasiku...

Kehtestati Raasiku alevikus asuva Pae 2a katastriüksuse ja lähiala detailplaneering

Raasiku Vallavalitsus teatab, et Raasiku Vallavalitsuse 26. mai 2025. a korraldusega nr 183 kehtestati Raasiku alevikus asuva Pae 2a katastriüksuse ja lähiala detailplaneering. Raasiku...

Raasiku Vallavolikogu istung toimub 10. juunil 2025. a algusega kell 16.30 Raasiku vallamajas, 2. korruse saalis.

Volikogu istung toimub 10. juunil

Raasiku Vallavolikogu istung toimub 10. juunil 2025. a algusega kell 16.30 Raasiku vallamajas, 2. korruse saalis.

Raasiku Vallavalitsus on alustamas vahva arendusprojekti – "Raasiku mänguväljaku laiendamine ja edasiarendamine" elluviimisega, mis saab teoks tänu „LEADER – kogukonna juhitud kohalik areng"...

Raasiku mänguväljak saab veelgi vahvamaks

Raasiku Vallavalitsus on alustamas vahva arendusprojekti – "Raasiku mänguväljaku laiendamine ja edasiarendamine" elluviimisega, mis saab teoks tänu „LEADER – kogukonna juhitud kohalik areng"...

Linnumäe tee 8 kinnistule (katastritunnusega 65101:001:1177) Igavere külas soovitakse püstitada garaaž. Linnumäe kinnistu ja lähiala detailplaneering, mis on vastu võetud Raasiku...

Igavere külas Linnumäe tee 8 kinnistu projekteerimistingimuste avalik väljapanek garaaži püstitamiseks

Linnumäe tee 8 kinnistule (katastritunnusega 65101:001:1177) Igavere külas soovitakse püstitada garaaž. Linnumäe kinnistu ja lähiala detailplaneering, mis on vastu võetud Raasiku...

Riigihangete registris avaldati 30.05.2025 15:00 järgmine teade: Hanketeade hanke 296126, "Pikavere mõisakooli spordiväljaku rajamine" kohta. Link hanketeatele: ...

Hange "Pikavere mõisakooli spordiväljaku rajamine"

Riigihangete registris avaldati 30.05.2025 15:00 järgmine teade: Hanketeade hanke 296126, "Pikavere mõisakooli spordiväljaku rajamine" kohta. Link hanketeatele: ...

Elron annab teada, et Sõiduplaanid muutuvad 9.-15. juunini (välja arvatud 10.-11.06) ida- ja lõunasuunal. Kõik Tartu liini reisid on asendatud bussidega Jõgeva-Tartu vahel, hommikul ja...

Elroni sõiduplaani muudatused juunis

Elron annab teada, et Sõiduplaanid muutuvad 9.-15. juunini (välja arvatud 10.-11.06) ida- ja lõunasuunal. Kõik Tartu liini reisid on asendatud bussidega Jõgeva-Tartu vahel, hommikul ja...

22. juunil kell 16.00 toimub Loo alevikus Vabaduse Hiies võidutamme istutamise tseremoonia 23. juunil Kuusalus toimub kell 9.30 pärgade asetamine Valkla lahingu mälestuskivi juures,...

Harju XXX maakaitsepäev toimub 23. juunil Kuusalus

22. juunil kell 16.00 toimub Loo alevikus Vabaduse Hiies võidutamme istutamise tseremoonia 23. juunil Kuusalus toimub kell 9.30 pärgade asetamine Valkla lahingu mälestuskivi juures,...

Vastavalt Raasiku Vallavolikogu 14.11.2023 määruse nr 17 § 4 lõikele 1 avalikustab Raasiku Vallavalitsus eelnõu „Raasiku vallas Aruküla alevikus liikluspinna Põllu tänav ruumikuju muutmine,...

Liikluspindade määramine ja katastriüksuste lähiaadresside määramine

Vastavalt Raasiku Vallavolikogu 14.11.2023 määruse nr 17 § 4 lõikele 1 avalikustab Raasiku Vallavalitsus eelnõu „Raasiku vallas Aruküla alevikus liikluspinna Põllu tänav ruumikuju muutmine,...

Piiri tn 5a kinnistule (katastritunnusega 65101:006:0078 ) Aruküla alevikus soovitakse püstitada üksikelamu. Raasiku valla üldplaneeringu järgi asub Piiri tn 5a kinnistu Aruküla alevikus...

Aruküla alevikus Piiri tn 5a kinnistu projekteerimistingimuste avalik väljapanek üksikelamu püstitamiseks

Piiri tn 5a kinnistule (katastritunnusega 65101:006:0078 ) Aruküla alevikus soovitakse püstitada üksikelamu. Raasiku valla üldplaneeringu järgi asub Piiri tn 5a kinnistu Aruküla alevikus...

Raasiku Vallavolikogu eelarve- ja majanduskomisjoni koosolek toimub kolmapäeval, 28.05.2025 kell 18:00 vallamaja kosolekute saalis Päevakorras: Raasiku Valla 2024. majandusaasta...

Eelarve- ja majanduskomisjoni koosolek toimub 28. mail

Raasiku Vallavolikogu eelarve- ja majanduskomisjoni koosolek toimub kolmapäeval, 28.05.2025 kell 18:00 vallamaja kosolekute saalis Päevakorras: Raasiku Valla 2024. majandusaasta...

Raasiku Vallavolikogu planeeringute -ja keskkonna komisjon toimub teisipäeval, 27. mail kell 17.00 vallamajas  Päevakorras: Detailplaneeringu algatamine  Unioru - Unimäe...

Planeeringute -ja keskkonna komisjon toimub 27. mail

Raasiku Vallavolikogu planeeringute -ja keskkonna komisjon toimub teisipäeval, 27. mail kell 17.00 vallamajas  Päevakorras: Detailplaneeringu algatamine  Unioru - Unimäe...

Raasiku Vallavolikogu haridus-, kultuuri, sotsiaal- ja spordikomisjoni koosolek toimub 26. mail 2025 algusega kell 17.00 vallamajas järgmise päevakorraga:   Raasiku valla arengukava...

Haridus-, kultuuri, sotsiaal- ja spordikomisjoni koosolek toimub 26. mail

Raasiku Vallavolikogu haridus-, kultuuri, sotsiaal- ja spordikomisjoni koosolek toimub 26. mail 2025 algusega kell 17.00 vallamajas järgmise päevakorraga:   Raasiku valla arengukava...

Alates homsest 20.05.2025 kuni neljapäevani 22.05.2025 on Paju tn ja Tallinna mnt ristmik suletud. Ümbersõiduks kasutada Palju põik tänavat või Raasiku-Maardu teed. VI etapiga hakkab...

Raasiku ÜVK OSA I liikluskorralduse muudatus alates 20.05.2025 kuni 22.05.2025

Alates homsest 20.05.2025 kuni neljapäevani 22.05.2025 on Paju tn ja Tallinna mnt ristmik suletud. Ümbersõiduks kasutada Palju põik tänavat või Raasiku-Maardu teed. VI etapiga hakkab...

Tugiisiku ülesanneteks on: lapse toetamine õppetegevusel lasteaias, sh. lapse juhendamine ja motiveerimine, tähelepanu hoidmine, füüsiline abistamine, lapse toetamine eakaaslaste ja...

Raasiku vallavalitsus otsib tugiisikut 4-aastasele poisile

Tugiisiku ülesanneteks on: lapse toetamine õppetegevusel lasteaias, sh. lapse juhendamine ja motiveerimine, tähelepanu hoidmine, füüsiline abistamine, lapse toetamine eakaaslaste ja...

Raasiku vald on koostamas kliima- ja energiakava, mille eesmärk on kujundada meie kogukonna kestlikum ja keskkonnasõbralikum tulevik. Ootame sind kaasa mõtlema! Avaseminar toimub 21. mai...

Raasiku valla kliima- ja energiakava avaseminar

Raasiku vald on koostamas kliima- ja energiakava, mille eesmärk on kujundada meie kogukonna kestlikum ja keskkonnasõbralikum tulevik. Ootame sind kaasa mõtlema! Avaseminar toimub 21. mai...

  Raasiku vallavalitsus otsustab võtta vastu ja avalikustada Aruküla alevikus asuva Männiku tee 27 katastriüksuse ja lähiala detailplaneeringu (koostaja: Raasiku vallavalitsus, Indrek...

Aruküla alevikus asuva „Männiku tee 27 katastriüksuse ja lähiala“ detailplaneeringu vastuvõtmine ja avaliku väljapaneku korraldamine.

  Raasiku vallavalitsus otsustab võtta vastu ja avalikustada Aruküla alevikus asuva Männiku tee 27 katastriüksuse ja lähiala detailplaneeringu (koostaja: Raasiku vallavalitsus, Indrek...

Raasiku vallavalitsus otsustab võtta vastu ja avalikustada Aruküla alevikus asuva Suvila 25 katastriüksuse ja lähiala detailplaneeringu (koostaja: Ruumi Grupp OÜ). Detailplaneeringu...

Aruküla alevikus asuva „Suvila tn 25 katastriüksuse ja lähiala“ detailplaneeringu vastuvõtmine ja avaliku väljapaneku korraldamine

Raasiku vallavalitsus otsustab võtta vastu ja avalikustada Aruküla alevikus asuva Suvila 25 katastriüksuse ja lähiala detailplaneeringu (koostaja: Ruumi Grupp OÜ). Detailplaneeringu...

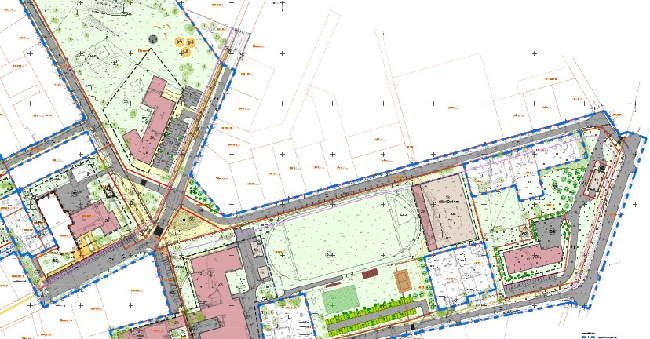
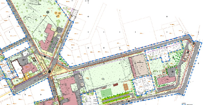
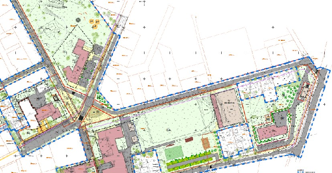
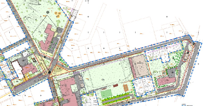
Raasiku vallavalitsuse eestvedamisel toimus 7. mail 2025 Raasiku rahvamajas Raasiku aleviku keskala detailplaneeringu eskiisi avalik tutvustus. Ootame Teie arvamusi 29. maini 2025...

Raasiku aleviku keskala detailplaneeringu eskiis arvamuste avaldamiseks

Raasiku vallavalitsuse eestvedamisel toimus 7. mail 2025 Raasiku rahvamajas Raasiku aleviku keskala detailplaneeringu eskiisi avalik tutvustus. Ootame Teie arvamusi 29. maini 2025...

Raasiku Vallavolikogu istung toimub esmaspäeval, 12. mail algusega kell 16.30 Arukülas, vallamaja 2. korruse koosolekute saalis.

Volikogu istung toimub 12.05.2025

Raasiku Vallavolikogu istung toimub esmaspäeval, 12. mail algusega kell 16.30 Arukülas, vallamaja 2. korruse koosolekute saalis.

Raasiku Vallavalitsus müüb elektroonilisel enampakkumisel hoonestamata kinnistut asukohaga Harju maakond, Raasiku vald, Aruküla alevik, Suvila tn 24b, mille pindala on 1513 m2....

Ehitusvõimalusega elamumaa kinnistu Arukülas - Suvila tn 24b

Raasiku Vallavalitsus müüb elektroonilisel enampakkumisel hoonestamata kinnistut asukohaga Harju maakond, Raasiku vald, Aruküla alevik, Suvila tn 24b, mille pindala on 1513 m2....

Raasiku Vallavalitsus algatas 28. aprillil 2025 Kurgla külas asuva Rähni ja Lõokese katastriüksuste ja lähiala „Kurgla krossiraja" detailplaneeringu. Alal kehtib Raasiku Vallavalitsuse 25....

Raasiku Vallavalitsus algatas Kurgla külas asuva Rähni ja Lõokese katastriüksuste ja lähiala „Kurgla krossiraja“ detailplaneeringu.

Raasiku Vallavalitsus algatas 28. aprillil 2025 Kurgla külas asuva Rähni ja Lõokese katastriüksuste ja lähiala „Kurgla krossiraja" detailplaneeringu. Alal kehtib Raasiku Vallavalitsuse 25....

Raasiku Vallavalitsus algatas 28. aprillil 2025 korraldusega nr. 149 Raasiku vallas, Perila külas, Kiili katastriüksuse ja lähiala detailplaneeringu. KuVa Kinnisvara OÜ juhatuse liige Ain...

Raasiku Vallavalitsus algatas Perila külas, Kiili katastriüksuse ja lähiala detailplaneeringu.

Raasiku Vallavalitsus algatas 28. aprillil 2025 korraldusega nr. 149 Raasiku vallas, Perila külas, Kiili katastriüksuse ja lähiala detailplaneeringu. KuVa Kinnisvara OÜ juhatuse liige Ain...

Raasiku vallavalitsus teavitab, et on väljastatud 20.01.2025 korraldus nr 24 „Ehituslubade väljastamine tehnovõrkude (külmaveetorustiku ja kanalisatsioonitorustiku) rajamiseks Aruküla alevikus...

Liikluskorraldus Aruküla alevikus Männiku teel muutub 05.05.2025

Raasiku vallavalitsus teavitab, et on väljastatud 20.01.2025 korraldus nr 24 „Ehituslubade väljastamine tehnovõrkude (külmaveetorustiku ja kanalisatsioonitorustiku) rajamiseks Aruküla alevikus...

Raasiku Vallavalitsus otsib oma meeskonda heakorratöötajat, kes aitab hoida meie valla avalikud alad puhtad ja hooldatud. Töö on tähtajaline - kuni oktoobri lõpuni. Töö toimub vastavalt...

Raasiku Vallavalitsus otsib oma meeskonda hooajalist heakorratöötajat

Raasiku Vallavalitsus otsib oma meeskonda heakorratöötajat, kes aitab hoida meie valla avalikud alad puhtad ja hooldatud. Töö on tähtajaline - kuni oktoobri lõpuni. Töö toimub vastavalt...

Eelarve- ja majanduskomisjon toimub 29. aprillil algusega kell 18.00 Arukülas, vallamaja 2. korruse saalis algusega kell 18.00. Päevakorras: Munitsipaalmaade võõrandamine Maade...

Eelarve- ja majanduskomisjon toimub 29. aprillil

Eelarve- ja majanduskomisjon toimub 29. aprillil algusega kell 18.00 Arukülas, vallamaja 2. korruse saalis algusega kell 18.00. Päevakorras: Munitsipaalmaade võõrandamine Maade...

AS Terrat alustab Raasikul Tallinna mnt 33 kuni 37 lõigul vee- ja kanalisatsioonitorustike ehitustöödega alates 28.04.2025. Tallinna maanteel jääb liiklus avatuks, kuid liiklejatel tuleb...

Vee- ja kanalisatsioonitorustike ehitustööd Raasikul Tallinna maanteel alates 28.04.2025.

AS Terrat alustab Raasikul Tallinna mnt 33 kuni 37 lõigul vee- ja kanalisatsioonitorustike ehitustöödega alates 28.04.2025. Tallinna maanteel jääb liiklus avatuks, kuid liiklejatel tuleb...

Raasiku Vallavalitsus teatab, et 07. mail 2025 kell 18.00 Raasiku rahvamaja 1. korruse saalis  toimub Raasiku aleviku keskala detailplaneeringu eskiisi  avalik tutvustus. ...

Raasiku aleviku keskala detailplaneeringu eskiisi tutvustus

Raasiku Vallavalitsus teatab, et 07. mail 2025 kell 18.00 Raasiku rahvamaja 1. korruse saalis  toimub Raasiku aleviku keskala detailplaneeringu eskiisi  avalik tutvustus. ...

12. mail algab romusõidukite kokkukogumise kampaania, mille käigus saab kuu aja jooksul jäätmekäitlejatele tasuta üle anda vanu seisma jäänud sõidukeid. Hoovis või põlluserval lagunevad...

Vabane hoovis seisvast autoromust!    

12. mail algab romusõidukite kokkukogumise kampaania, mille käigus saab kuu aja jooksul jäätmekäitlejatele tasuta üle anda vanu seisma jäänud sõidukeid. Hoovis või põlluserval lagunevad...

Raasiku Vallavalitsus otsustab avalikustada ja korraldada avalik väljapanek Järsi külas asuva "Riisimäe katastriüksuse ja lähiala" detailplaneeringu (Autor: OÜ Ilm Arhitekt, töö nr 0324,...

Järsi külas asuva “Riisimäe katastriüksuse ja lähiala” detailplaneeringu avalik väljapanek

Raasiku Vallavalitsus otsustab avalikustada ja korraldada avalik väljapanek Järsi külas asuva "Riisimäe katastriüksuse ja lähiala" detailplaneeringu (Autor: OÜ Ilm Arhitekt, töö nr 0324,...

Raasiku Vallavalitsus avab ideekorje kaasava eelarve raames parima rahvaalgatusliku projekti leidmiseks. Raasiku vallaga seotud investeeringuobjektide rajamiseks eraldame valla eelarvest kuni...

Algab ideekorje kaasava eelarve raames parima rahvaalgatusliku projekti leidmiseks

Raasiku Vallavalitsus avab ideekorje kaasava eelarve raames parima rahvaalgatusliku projekti leidmiseks. Raasiku vallaga seotud investeeringuobjektide rajamiseks eraldame valla eelarvest kuni...

Valminud on Harju maavarade teemaplaneeringu ja mõjude hindamise eelnõud. Teemaplaneeringuga määratakse riikliku huviga võimalikud alad, kus ehitusmaavarasid uurida või kaevandada. Majandus- ja...

Majandus- ja Kommunikatsiooniministeeriumi pressiteade

Valminud on Harju maavarade teemaplaneeringu ja mõjude hindamise eelnõud. Teemaplaneeringuga määratakse riikliku huviga võimalikud alad, kus ehitusmaavarasid uurida või kaevandada. Majandus- ja...

Sügise tn 31 kinnistule (katastritunnusega 65101:003:0980) Aruküla alevikus soovitakse püstitada üksikelamu. Raasiku valla üldplaneeringu järgi asub Sügise tn 31 kinnistu Aruküla alevikus,...

Aruküla alevikus Sügise tn 31 kinnistu projekteerimistingimuste avalik väljapanek üksikelamu püstitamiseks

Sügise tn 31 kinnistule (katastritunnusega 65101:003:0980) Aruküla alevikus soovitakse püstitada üksikelamu. Raasiku valla üldplaneeringu järgi asub Sügise tn 31 kinnistu Aruküla alevikus,...

30.01. - 13.02.2025 toimus Igavere külas Hiirekõrva katastriüksuse ja lähiala detailplaneeringu (Autor: OÜ Buune Projekt, töö nr 2020121182, planeeringu ID 88353) avalik väljapanek.  ...

Kutse avalikule arutelule

30.01. - 13.02.2025 toimus Igavere külas Hiirekõrva katastriüksuse ja lähiala detailplaneeringu (Autor: OÜ Buune Projekt, töö nr 2020121182, planeeringu ID 88353) avalik väljapanek.  ...

Raasiku Vallavolikogu istung toimub 8. aprillil 2025. a kell 16.30 Arukülas, Raasiku vallamaja 2. korruse koosolekute saalis. Istungi päevakord ja eelnõud  

Raasiku Vallavolikogu istung toimub 8. aprillil

Raasiku Vallavolikogu istung toimub 8. aprillil 2025. a kell 16.30 Arukülas, Raasiku vallamaja 2. korruse koosolekute saalis. Istungi päevakord ja eelnõud  

Seoses elektritöödega (kaevetööd) kehtib Aruküla alevikus Männiku teel ajutine liikluskorraldus ajavahemikul 07.04-09.04.2025. Töid teostab Pluvo Eesti OÜ, kontaktisik Pavel Paštševski, tel:...

Aruküla alevikus Männiku teel kehtib ajutine liikluskorraldus ajavahemikul 07.04-09.04.2025

Seoses elektritöödega (kaevetööd) kehtib Aruküla alevikus Männiku teel ajutine liikluskorraldus ajavahemikul 07.04-09.04.2025. Töid teostab Pluvo Eesti OÜ, kontaktisik Pavel Paštševski, tel:...

Raasiku vallavalitsus teavitab, et on väljastatud 16.10.2023 korraldus nr 421 „Ehitusloa väljastamine akupanga rajamiseks Järsi küla, Kangla tee 4 ja Sepa kinnistule" mille ehituskäigus toimub...

Liikluskorralduse muudatus Järsi külas

Raasiku vallavalitsus teavitab, et on väljastatud 16.10.2023 korraldus nr 421 „Ehitusloa väljastamine akupanga rajamiseks Järsi küla, Kangla tee 4 ja Sepa kinnistule" mille ehituskäigus toimub...

Raasiku Vallavalitsus korraldab taas oma valla elanikele kampaania kasside steriliseerimiseks ja kastreerimiseks. Kampaania raames on kassiomanikul võimalik lasta oma lemmik soodsamalt...

Kasside kastreerimise ja steriliseerimise kampaania

Raasiku Vallavalitsus korraldab taas oma valla elanikele kampaania kasside steriliseerimiseks ja kastreerimiseks. Kampaania raames on kassiomanikul võimalik lasta oma lemmik soodsamalt...

Seni on saanud kriisivalmiduse infot veebilehelt olevalmis.ee, kuid alates 24. märtsist saab küsida kriisivalmidusest ja -varudest, ohuteavitusest, varjumisest ning ulatuslikust evakuatsioonist...

Riigiinfo telefonilt 1247 saab küsida nõu, kuidas tagada lähedaste valmisolek kriisideks

Seni on saanud kriisivalmiduse infot veebilehelt olevalmis.ee, kuid alates 24. märtsist saab küsida kriisivalmidusest ja -varudest, ohuteavitusest, varjumisest ning ulatuslikust evakuatsioonist...

Raasiku Vallavalitsus otsustab võtta vastu ja avalikustada Raasiku alevikus asuva " Pae tn 2a    katastriüksuse ja lähiala" detailplaneeringu (Autor: Casa Planeeringud OÜ, töö nr...

Raasiku alevikus asuva Pae tn 2a katastriüksuse ja lähiala detailplaneeringu vastuvõtmine ja avaliku väljapaneku korraldamine.

Raasiku Vallavalitsus otsustab võtta vastu ja avalikustada Raasiku alevikus asuva " Pae tn 2a    katastriüksuse ja lähiala" detailplaneeringu (Autor: Casa Planeeringud OÜ, töö nr...

Raasiku Vallavalitsus kehtestas 10.03.2025 korraldusega nr. 90 Igavere külas, Lehise katastriüksuse ja lähiala detailplaneeringu. Detailplaneeringuga jagatakse Lehise...

Igavere külas, Lehise katastriüksuse ja lähiala detailplaneeringu kehtestamine

Raasiku Vallavalitsus kehtestas 10.03.2025 korraldusega nr. 90 Igavere külas, Lehise katastriüksuse ja lähiala detailplaneeringu. Detailplaneeringuga jagatakse Lehise...

Raasiku Vallavalitsus kehtestas  10.03.2025 korraldusega nr. 91 Raasiku alevikus, Meierei 34 katastriüksuse ja lähiala detailplaneeringu. Planeeringuala suurus on ca 0,45 ha....

Raasiku alevikus, Meierei 34 katastriüksuse ja lähiala detailplaneeringu kehtestamine

Raasiku Vallavalitsus kehtestas  10.03.2025 korraldusega nr. 91 Raasiku alevikus, Meierei 34 katastriüksuse ja lähiala detailplaneeringu. Planeeringuala suurus on ca 0,45 ha....

Riigihangete registris avaldati 18.03.2025 15:00 järgmine teade: Hanketeade hanke 292445, "Raasiku vallas välisvalgustuse hooldustööde teostamine" kohta. Link hanketeatele:  ...

Hanketeade hanke "Raasiku vallas välisvalgustuse hooldustööde teostamine" kohta

Riigihangete registris avaldati 18.03.2025 15:00 järgmine teade: Hanketeade hanke 292445, "Raasiku vallas välisvalgustuse hooldustööde teostamine" kohta. Link hanketeatele:  ...

Riigihangete registris avaldati 18.03.2025 15:00 järgmine teade: Hanketeade hanke 292430, "Kulli küla Tuule tn tänavavalgustuse projekteerimine ja rajamine" kohta. Link hanketeatele:  ...

Hanketeade hanke "Kulli küla Tuule tn tänavavalgustuse projekteerimine ja rajamine" kohta.

Riigihangete registris avaldati 18.03.2025 15:00 järgmine teade: Hanketeade hanke 292430, "Kulli küla Tuule tn tänavavalgustuse projekteerimine ja rajamine" kohta. Link hanketeatele:  ...

17.03.2025 – 26.03.2025  toimuvad  ühisveevärgi ja -kanalisatsiooni (ÜVK) trasside ehitustööd , mille käigus on ajutiselt suletud liiklus  Meierei tänava suunal Maardu-Raasiku...

Meierei tänava ajutisest sulgemisest

17.03.2025 – 26.03.2025  toimuvad  ühisveevärgi ja -kanalisatsiooni (ÜVK) trasside ehitustööd , mille käigus on ajutiselt suletud liiklus  Meierei tänava suunal Maardu-Raasiku...

Riigihangete registris avaldati 17.03.2025 10:04 järgmine teade: Hanketeade hanke 292337, "Raasiku aleviku mänguväljaku rajamine" kohta. Link hanketeatele:  ...

Hanketeade hanke "Raasiku aleviku mänguväljaku rajamine" kohta.

Riigihangete registris avaldati 17.03.2025 10:04 järgmine teade: Hanketeade hanke 292337, "Raasiku aleviku mänguväljaku rajamine" kohta. Link hanketeatele:  ...

Riigihangete registris avaldati 17.03.2025 10:04 järgmine teade: Hanketeade hanke 292339, "Pindamine Raasiku vallas" kohta. Link hanketeatele: ...

Hanketeade hanke "Pindamine Raasiku vallas" kohta.

Riigihangete registris avaldati 17.03.2025 10:04 järgmine teade: Hanketeade hanke 292339, "Pindamine Raasiku vallas" kohta. Link hanketeatele: ...

Riigihangete registris avaldati 17.03.2025 10:04 järgmine teade: Hanketeade hanke 291247, "Erinevate ehitusobjektide projekteerimine Raasiku Vallas" kohta. Link hanketeatele: ...

Hanketeade hanke "Erinevate ehitusobjektide projekteerimine Raasiku Vallas" kohta.

Riigihangete registris avaldati 17.03.2025 10:04 järgmine teade: Hanketeade hanke 291247, "Erinevate ehitusobjektide projekteerimine Raasiku Vallas" kohta. Link hanketeatele: ...

Elron teatab, et alanud on suuremahuline raudtee ehitus- ja remontide periood, mis toob muudatusi terve aasta. Raasiku-Lagedi ja Tapa-Aegviidu vahel on üks peatee suletud ning algab ka...

1.-25. aprillini on reisirongide sõiduplaan muutunud

Elron teatab, et alanud on suuremahuline raudtee ehitus- ja remontide periood, mis toob muudatusi terve aasta. Raasiku-Lagedi ja Tapa-Aegviidu vahel on üks peatee suletud ning algab ka...

Raasiku Vallavalitsus kehtestas  25.02.2025 korraldusega  nr. 81 Kurgla külas asuva Rähni ja Lõokese katastriüksuste ja lähiala „Kurgla krossiraja" detailplaneeringu. ...

Kurgla külas asuva Rähni ja Lõokese katastriüksuste ja lähiala „Kurgla krossiraja“ detailplaneeringu kehtestamine

Raasiku Vallavalitsus kehtestas  25.02.2025 korraldusega  nr. 81 Kurgla külas asuva Rähni ja Lõokese katastriüksuste ja lähiala „Kurgla krossiraja" detailplaneeringu. ...

AS Terrat alustab Raasikul Võidu tänaval vee- ja kanalisatsioonitorustike ehitustöödega alates 17.03.2025. Ehitustöödega on seotud jätkuvalt Nurme tänav. Ümbersõit on põhiliikluseks...

Ehitustööd ka Raasikul Nurme tänaval

AS Terrat alustab Raasikul Võidu tänaval vee- ja kanalisatsioonitorustike ehitustöödega alates 17.03.2025. Ehitustöödega on seotud jätkuvalt Nurme tänav. Ümbersõit on põhiliikluseks...