Igavere küla Vääri tee 7 ja Vääri tee 14 kinnistute projekteerimistingimuste avalik väljapanek detailplaneeringu olemasolul

Vääri tee 7 ja Vääri tee 14 kinnistutele soovitakse püstitada kaksikelamud.

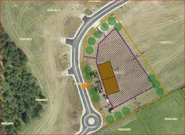
Kinnistutel kehtib Vääri I maaüksuse ja lähiala detailplaneering, mis on kehtestatud 09.10.2007 Raasiku Vallavolikogu otsusega nr 113. Detailplaneeringuga on määratud kinnistule lubatavate hoonete kasutusotstarbeks üksikelamu ja kuni kaks abihoonet.

Detailplaneeringu positsioonid nr 6 (Vääri tee 14) ja nr 7 (Vääri tee 7) on valitud kaksikelamute püstitamiseks kõige sobilikumad, kuna nendel kruntidel on laiemad tänavapoolsed frondid ning krundi kujust tulenevalt on võimalik jagada kinnistut vajadusel mõtteliselt/kasutuskorra alusel kaheks osaks.

Vastavalt EhS § 27 lg 4 p 1 on võimalik asjakohasel juhul projekteerimistingimustega täpsustada hoone kasutamise otstarvet. EhS § 27 lg 1 alusel võib pädev asutus põhjendatud juhul anda detailplaneeringu olemasolu korral ehitusloakohustusliku hoone või olulise rajatise ehitusprojekti koostamiseks projekteerimistingimusi, kui detailplaneeringu kehtestamisest on möödas üle viie aasta.

Raasiku Vallavalitsus on seisukohal kehtiva Vääri I maaüksuse ja lähiala detailplaneeringu positsioonile nr 6 (Vääri tee 14) ja nr 7 (Vääri tee 7) kaksikelamute püstitamiseks projekteerimistingimuste väljastamine ei mõjuta oluliselt Raasiku Vallavolikogu otsusega nr 113, 09.10.2007 kehtestatud detailplaneeringu lahendust. Detailplaneeringualale lisandub kaks elamuühikut.

Projekteerimistingimustega muudetakse antud juhul detailplaneeringut, vaid krundile positsiooniga nr 6 ja nr 7 määratud hoone kasutusotstarbe, krundile lubatavate hoonete arvu ja planeeritavate parkimiskohtade arvu osas. Kinnistutele lubatakse püstitada üks kaksikelamu ilma abihooneteta (vajalikud abiruumid tuleb lahendada kaksikelamu mahus) ehitisealuse pinnaga kuni 240m². Ühe kaksikelamu sektsiooni kohta on vaja planeerida 2 parkimiskohta. Detailplaneeringuga määratud kõik ülejäänud tingimused jäävad kehtima vastavalt Vääri I maaüksuse detailplaneeringule.

Materjalidega on võimalik tutvuda Raasiku valla kodulehel: https://raasiku.ee/dokumendid

Ehitusseadustiku § 31 lg 1 kohaselt pädev asutus otsustab projekteerimistingimuste andmise avatud menetlusena kui projekteerimistingimuste andmisel tuginetakse ehitusseadustiku § 27 ja/või planeerimisseaduse § 125 lg 5 tuleb korraldada projekteerimistingimuste avalik menetlus.

Tulenevalt HmS § 50 teeb Raasiku Vallavalitsus ettepaneku, et avalikule väljapanekule ei järgne avalikku arutelu, kui menetlusosaline ei ole ettepanekute ja vastuväidete esitamise tähtajaks esitanud selle suhtes vastuväiteid.

Avaliku väljapaneku ajal on huvitatud isikutel võimalus esitada eelnõu osas ettepanekuid ja põhjendatud vastuväiteid kirjalikult e-posti aadressil: raasiku.vald@raasiku.ee või postiaadressil Raasiku Vallavalitsus- Tallinna mnt 24, Aruküla 75201 kuni 05.02.2025.