Kehtestati Igavere külas asuv Sinilille katastriüksuse ja lähiala detailplaneering.
Raasiku Vallavalitsus teatab, et Raasiku Vallavalitsuse 1. detsembri 2025. a korraldusega nr 467 kehtestati Igavere külas asuv Sinilille (65101:001:0173) katastriüksuse ja lähiala...
Raasiku vallavalitsus otsib tugiisikut 5-aastasele tüdrukule
Tugiisiku ülesanneteks on lapse toetamine õppetegevusel lasteaias, sh lapse juhendamine ja motiveerimine, tähelepanu hoidmine, füüsiline abistamine, lapse toetamine suhtlemisel eakaaslaste...
Vallavolikogu istung toimub 16. detsembril
Raasiku Vallavolikogu istung toimub 16. detsembril 2025. a algusega kell 17.00 Raasiku vallamaja 2. korruse koosolekute saalis. Istungi päevakord ja eelnõud
Kehtestati Kalesi külas asuv Kaasiku ja Kumma katastriüksuste ja lähiala detailplaneering
Raasiku Vallavalitsus teatab, et Raasiku Vallavalitsuse 24. novembri 2025. a korraldusega nr 450 kehtestati Kalesi külas asuv Kaasiku (65101:003:0552) ja Kumma (65101:003:0553) katastriüksuste...
Volikogu istung toimub 09.12.25
Raasiku Vallavolikogu istung toimub 9. detsembril 2025. a algusega kell 17.00 Raasiku vallamajas, 2. korruse saalis. Istungi päevakord
Koostöökokkulepe
Valimisliit Raasiku Vald ja Valimisliit Arenev Raasiku Vald sõlmisid koostöökokkulepe. Koostöökokkulepe Raasiku vallas 2025-2029
Raasiku vallavolikogu istung toimub 03.12.2025
Raasiku Vallavolikogu istung toimub 3.12.2025 algusega kell 17.00 vallamaja 2. korruse saalis (Aruküla, Tallinna mnt 24). Volikogu istungi päevakord ja eelnõud Volikogu istungit on...
Raasiku valla valimiskomisjon kinnitas valimistulemused
Raasiku valla valmiskomisjon registreeris 27. novembril Raasiku vallavolikogu liikmed, asendusliikmed ja lisamandaadid. Raasiku valla valimiskomisjon otsustas registreerida Raasiku...
Raasiku Vallavalitsus teatab, et Raasiku Vallavalitsuse 10. novembri 2025. a korraldusega nr 435 kehtestati Aruküla alevikus asuva Võidu 9 katastriüksuse ja lähiala detailplaneering.
Raasiku Vallavalitsuse 11. novembri 2024. a. korraldusega nr. 433 algatati Võidu 9 katastriüksuse ja lähiala detailplaneeringu koostamine, kinnitati detailplaneeringu lähteülesanne...
Igavere küla Vääri tee 4 kinnistu projekteerimistingimuste avalik väljapanek detailplaneeringu olemasolul
Vääri tee 4 kinnistule soovitakse püstitada üksikelamu katuse kaldega 0-6°. Kinnistutel kehtib Vääri I maaüksuse ja lähiala detailplaneering, mis on kehtestatud 09.10.2007 Raasiku...
Aia- ja haljastujäätmete äraveo info
Kuni 27. novembrini saab aia- ja haljastujäätmeid ära anda Eesti Keskkonnateenused AS-i kaudu korraldatud jäätmeveo raames. Selleks: kogu aia- ja haljastujäätmed läbipaistvasse...
Raasiku valla kliima- ja energiakava avalikustamine
Raasiku vald on välja töötamas valdkondade ülest kliimapoliitilist strateegiadokumenti – Raasiku valla kliima- ja energiakava , mille eesmärk on määratleda valla peamised sihid ja...
Tähtpäevatoetuse (jõulutoetus) avalduse esitamise tähtaeg on 30. november
Jõulutoetust makstakse avalduse alusel rahvastikuregistri andmetel Raasiku vallas elavatele: 1) kolme- ja enamalapselistele peredele; ...
Kalesi külas asuva liikluspinna ruumikuju ja kohanime määramine; katastriüksuste lähiaadresside määramine liikluspinna järgi
Vastavalt Raasiku Vallavolikogu 14.11.2023 määruse nr 17 „Kohanime määramise kord" § 4 lõikele 1 avalikustab Raasiku Vallavalitsus eelnõu „Kalesi külas asuva liikluspinna ruumikuju ja kohanime...
Vöörmündri tee, Kirikumõisa tee ja Köstri tee kohanime muutmine, Vöörmündri tee ja Kirikumõisa tee liikluspindade ruumikuju muutmine ning uute liikluspindade määramine
Vastavalt Raasiku Vallavolikogu 14.11.2023 määruse nr 17 „Kohanime määramise kord" § 4 lõikele 1 avalikustab Raasiku Vallavalitsus eelnõu „Raasiku alevikus asuvate Vöörmündri tee, Kirikumõisa...
Männimetsa tee liikluspinna kehtetuks tunnistamine, Metsa tee liikluspinna ruumikuju muutmine ja katastriüksuste lähiaadresside määramine liikluspinna järgi
Vastavalt Raasiku Vallavolikogu 14.11.2023 määruse nr 17 „Kohanime määramise kord" § 4 lõikele 1 avalikustab Raasiku Vallavalitsus eelnõu „Männimetsa tee liikluspinna kehtetuks tunnistamine,...
Igavere külas asuva Pihlaka tee liikluspinna ruumikuju muutmine; katastriüksuste lähiaadresside määramine liikluspinna järgi
Vastavalt Raasiku Vallavolikogu 14.11.2023 määruse nr 17 „Kohanime määramise kord" § 4 lõikele 1 avalikustab Raasiku Vallavalitsus eelnõu „Igavere külas asuva Pihlaka tee liikluspinna ruumikuju...
Taastus õpilasliini nr 4 sõidugraafik
Õpilasliin nr 4 väljub Aruküla raudteejaamast jälle tavapärasel kellaajal ehk 16.45. Õpilasliinide sõidugraafikud leitavad siit
Raasiku vallavalitsus korraldab konkursi vallavanema leidmiseks
Vallavanema tööülesanneteks on valla arengu strateegiline planeerimine koostöös volikogu ja kogukondadega vallavalitsuse töö juhtimine vastavalt KOKS- ile, valla põhimäärusele ja...
Perearst Piret Rospu: gripivaktsiin kaitseb vanemaealisi, lapsi ja ka sind ennast
Gripp levib Eestis igal aastal laialdaselt ning võib põhjustada tõsiseid terviseprobleeme. Eriti ohustatud on väikelapsed, riskihaigustega noored, lapseootel naised ja üle 60-aastased...
Liikluspinna ruumikuju ja kohanime määramine; katastriüksuste lähiaadresside määramine liikluspinna järgi
Vastavalt Raasiku Vallavolikogu 14.11.2023 määruse nr 17 „Kohanime määramise kord" § 4 lõikele 1 avalikustab Raasiku Vallavalitsus eelnõu „Igavere külas asuva liikluspinna ruumikuju ja kohanime...
Raasiku vallavalitsus otsib tugiisikut 4-aastasele poisile
Tugiisiku ülesanneteks on: lapse toetamine õppetegevusel lasteaias, sh. lapse juhendamine ja motiveerimine, tähelepanu hoidmine, füüsiline abistamine, lapse toetamine eakaaslaste ja õpetajatega...
Teade seoses traagilise sündmusega
Politsei- ja Piirivalveamet avaldas pressiteate seoses traagilise sündmusega Harjumaal.
Muudatused Raasiku valla õpilasliinide sõiduplaanis
Seoses Elroni rongide sõiduplaani muutusega on alates 14. oktoobrist 2025 tehtud muudatused ka Raasiku valla õpilasliinide graafikutes. Muudatused on tehtud...
Algas valimisnädal
Algas kohaliku omavalitsuse volikogu valimiste valimisnädal, mis kestab valimispäevani ehk 19. oktoobrini (pühapäev). Hääletamine valimisjaoskonnas Raasiku vallas on...
Avatakse Aruküla-Kalesi kergliiklustee
Aruküla-Kalesi kergtee avamine toimub 18.10.2025 kell 11.00. Kogunemine Jetoili parklas.
Volikogu istung 14.10.2025
Raasiku Vallavolikogu istung toimub 14. oktoobril 2025. a algusega kell 16.30 Arukülas, Raasiku vallamaja 2. korruse koosolekute saalis Istungi päevakord ja eelnõud
Valimisdebatt Aruküla rahvamajas
Valimisdebatt Aruküla rahvamajas toimub 8.oktoobril. Otseülekannet debatist näeb siit.
Aruküla aleviku Tallinna mnt 21 kinnistu projekteerimistingimuste avalik väljapanek detailplaneeringuga määratud hoonestusala suurendamiseks ja abihoone püstitamiseks
Aruküla alevikus Tallinna mnt 21 kinnistul (katastritunnusega 65101:003:0597) soovitakse seadustada ehitusloakohustuslik abihoone, mis on püstitatud detailplaneeringuga määratud hoonestusalast...
Raasiku vallavalitsus pakub tööd noorte heaolu spetsialistile
Noorte heaolu spetsialisti peamised tööülesanded on:
Raasiku vallavalitsus pakub tööd haridus- ja kultuurispetsialistile
Ametikoha eesmärk on: Raasiku valla haridus- ja kultuurivaldkonna alaste tegevuste korraldamine, valdkondlike analüüside, arengusuundade ja eesmärkide kavandamine ning elluviimine. ...
Sinu Arst kliinikud annab teada arstiabi korraldusest Arukülas
Alates 1. oktoobrist alustab endise Aruküla ambulatooriumi asemel tööd Sinu Arsti Aruküla Tervisekeskus . Pereõed, keda juba tunnete ja usaldate, jätkavad oma tööd...
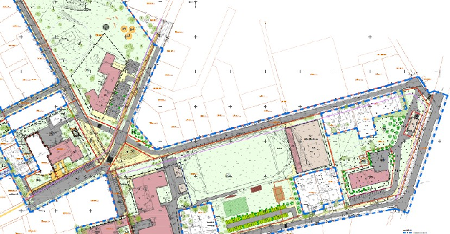
Raasiku Vallavalitsus algatas Raasiku aleviku keskala detailplaneeringu.
Raasiku Vallavalitsus teatab, et algatas 15. septembril 2025 korraldusega nr. 342 Raasiku alevikus, Raasiku aleviku keskala detailplaneeringu. Detailplaneeringu algataja,...
Võõrnälkjate tõrjega on vaja jätkata ka sügisel
Kuigi sügisesed ilmad on veidi jahedamad, pole veel õige aeg võõrnälkjate – hispaania teeteo ja mustpeanälkja – tõrjet lõpetada. Nälkjad toimetavad ka sügisel, kuni ilmad pole veel külmaks...
Enampakkumise korraldamine vallavara üürile andmiseks
Raasiku Vallavalitsus viib läbi kirjaliku enampakkumine Raasiku vallas Raasiku alevikus, Tallinna mnt 19 (Raasiku Tervisekeskus) asuva apteegiruumi üürile andmiseks ajavahemikul 25.10.2025 kuni...
Raasiku Vallavalitsus algatas Aruküla alevikus ja Kurgla külas Haavamäe katastriüksusel ja lähialal „Haavamäe“ detailplaneeringu.
Raasiku Vallavalitsus algatas 15. septembril 2025 korraldusega nr. 335 Aruküla alevikus ja Kurgla külas Haavamäe katastriüksusel ja lähialal „Haavamäe" detailplaneeringu. Detailplaneeringuga...
Raasiku vallavalitsus otsib tugiisikut 4-aastasele poisile
Tugiisiku ülesanneteks on: lapse toetamine õppetegevusel lasteaias, sh. lapse juhendamine ja motiveerimine, tähelepanu hoidmine, füüsiline abistamine, lapse toetamine eakaaslaste ja...
Sinu Arsti Tervisekeskus alustas perearstiabi pakkumist Raasiku valla rahvale
Aruküla filiaali avamine Alates 01.06.2025 alustas Sinu Arsti Tervisekeskus perearstiabi pakkumist Raasiku valla rahvale. Tegevuskohtadeks on Tallinnas Pärnu mnt. 113 asuv Sinu Arsti...
Raasiku Valla valimiskomisjoni koosolek toimub 12. septembril
Raasiku Valla valimiskomisjoni koosolek kandidaatide registreerimiseks ja liisuheitmise läbiviimiseks toimub vallamaja 2. korruse saalis 12. septembril algusega 12.00. ...
8. septembril avaneb lasterikaste perede kodutoetuse taotlusvoor
Ettevõtluse ja Innovatsiooni Sihtasutus avab 8. septembril 2025 kell 11.00 lasterikaste perede kodutoetuse taotlusvooru. Voor on avatud kuni 20. oktoobrini 2025 kell 23.59. Taotlusi...
Volikogu istung toimub 10. septembril
Raasiku Vallavolikogu istung toimub 10. septembril 2025. a algusega kell 16.30 Arukülas, Raasiku vallamaja 2. korruse koosolekute saalis. Istungi päevakord ja eelnõud
Avanenud on Raasiku valla eelarvest toetuste taotlemise voor
Avanenud on Raasiku valla eelarvest toetuste taotlemise voor kultuuri-, noorsoo- ja spordiprogrammide, elukeskkonna arendamise ja kohaliku omaalgatuse edendamiseks. Toetust...
Kalesi külas asuva Kumma ja Kaasiku katastriüksuste ja lähiala detailplaneeringu vastuvõtmine ja avaliku väljapaneku korraldamine
Kalesi külas asuva Kumma (65101:003:0553) ja Kaasiku (65101:003:0552) katastriüksuste ja lähiala detailplaneeringu vastuvõtmine ja avaliku väljapaneku korraldamine. ...
Aruküla alevikus asuva Võidu 9 katastriüksuse ja lähiala detailplaneeringu vastuvõtmine ja avaliku väljapaneku korraldamine
Raasiku Vallavalitsus otsustab võtta vastu ja avalikustada Aruküla alevikus asuva " Võidu 9 katastriüksuse ja lähiala " detailplaneeringu (koostaja: Arhitektuuribüroo...
Kehtestati Aruküla alevikus asuva Männiku tee 27 katastriüksuse ja lähiala detailplaneering
Raasiku Vallavalitsus teatab, et Raasiku Vallavalitsuse 01. septembri 2025. a korraldusega nr 313 kehtestati Aruküla alevikus asuva Männiku tee 27 katastriüksuse ja lähiala detailplaneering. ...
Raasiku vallavalitsus kutsub üles esitama kandidaate aasta haridusteo nimetuse omistamiseks
Raasiku Vallavalitsus kutsub teid üles õpetajate päeva üritusel välja antava tunnustusavalduse - aasta haridustegu - kandidaate esitama. Aasta haridustegu - nimetus omistatakse vallaga...
Elron teavitab sõiduplaani muudatuse edasilükkamisest
Elron teavitab teavitab kahetsusega, et seoses Eesti Raudtee teatega, et Tapa jaamas ei saa tööd valmis 1. septembriks, siis lükatakse 1. septembrii sõiduplaani muudatus edasi 21. septembrini. ...
17. septembril on alustamas uus Gordoni suhtlustreeningu grupp
Koolitus sobib sulle, kui tahad teada, kuidas: •kuulata last nii, et ta sooviks enda mõtteid jagada. • vanemana jaksata ja enda vajaduste eest seista. • kasvatada lastes...
Aruküla Huvialakeskus Pääsulind 2025/2026 õppeaasta avaaktused
Aruküla Huvialakeskus Pääsulind 2025/2026 õppeaasta avaaktuste toimumisajad Raasiku filiaali aktus 03.09. kell 18.00 Raasiku Rahvamajas Aruküla aktused toimuvad 04.09....
Alates 01. septembrist muutuvad Balti jaama algpeatustes maakonna avalike liinide väljumiskohad
Balti jaam post 1 alt väljuvad liinid – Peetri, Jüri, Aruküla 121, 162, 120, 120A, 121, 125, 125A, 132, 132A, 134, 135, 135A, 135C Balti jaam post 2 alt väljuvad liinid – Vaida,...
1. septembri avaaktused Raasiku valla munitsipaalkoolides
2025/2026 õppeaasta 1. septembri avaaktused Raasiku valla munitsipaalkoolides: Pikavere Mõisakoolis: Kogu koolipere aktus kell 9.00 Aruküla...
Aruküla alevikus Talve tee 3 kinnistu projekteerimistingimuste avalik väljapanek üksikelamu ehitamiseks
Talve tee 3 kinnistule (katastritunnusega 65101:003:0710) soovitakse ehitada üksikelamu. Vastavalt Raasiku valla üldplaneeringule on tegemist Aruküla Männiku I alal asuva elamumaa...
Kalesi külas Kadarpiku tee 6 kinnistu projekteerimistingimuste avalik väljapanek üksikelamu ehitamiseks
Kadarpiku tee 6 kinnistule (katastritunnusega 65101:001:1154) soovitakse ehitada üksikelamu. Kadarpiku tee 6 kinnistu asub hoonestatud kinnistute kõrval ning sobitub kinnistu suuruselt antud...
Lusikapidu toimub 6. septembril
Lusikapidu ajavahemikul 23.08.2024 - 08.08.2025 sündinud lastele ja nende peredele toimub 6. septembril
Kutse Raasiku valla arengukava 2025–2035 avalikule tutvustamisele
Raasiku valla volikogu ja vallavalitsus kutsuvad Teid osalema Raasiku valla arengukava 2025–2035 avalikul tutvustamisel. Tutvustuse ajakava ja toimumiskohad: 21. august 2025 kell...
Kasteheina ja Piipheina katastriüksuste ja lähiala detailplaneeringu algatamine
Raasiku Vallavalitsus teatab, et algatas 04. augustil 2025 korraldusega nr. 277 Igavere külas, Kasteheina ja Piipheina katastriüksuste ja lähiala detailplaneeringu. Detailplaneeringuga...
Volikogu istung toimub 11. augustil
Raasiku Vallavolikogu istung toimub 11. augustil 2025. a algusega kell 16.30 Arukülas, Raasiku vallamaja 2. korruse koosolekute saalis.
Avatud riigile kuuluvate põllumajandusmaade rendile andmise oksjon
Maa- ja Ruumiamet on välja kuulutanud avaliku elektroonilise enampakkumise piirkonnas (sh ka Raasiku vallas) asuvate põllumajandusmaade kasutamiseks andmiseks. Pakkumiste esitamise...
Osale HEAK turismipiirkonna uuringus
Harju Ettevõtlus- ja Arenduskeskus kutsub osalema Harju-, Rapla- ja Läänemaa DMO tellitud kohalike elanike uuringus "Mida arvad sina turismist oma kodukohas?" , uuringuperiood...
Raasiku vallavalitsus arendas LEADER – kogukonna juhitud kohalik areng meetme toetuse abiga Raasiku mänguväljakut.
Projekti „Raasiku mänguväljaku laiendamine ja edasiarendamine" eesmärk oli luua turvaline, ligipääsetav ja mitmekesiste tegevusvõimalustega pereväljak, kus erinevas vanuses lastel oleks ruumi...
Raasiku vallavalitsus otsib tugiisikut 8-aastasele poisile.
Tugiisiku ülesanneteks on: lapse toetamine õppetegevusel, sh. lapse juhendamine ja motiveerimine, tähelepanu hoidmine, lapse toetamine eakaaslaste ja õpetajatega suhtlemisel, järelevalve...
Raasiku Vallavalitsus teatab, et Raasiku Vallavalitsuse 07. juuli 2025. a korraldusega nr 237 kehtestati Aruküla alevikus asuva Suvila tn 25 katastriüksuse ja lähiala detailplaneering.
Raasiku Vallavolikogu 18. novembri 2024 korraldusega nr. 443 algatati Aruküla alevikus, Suvila tn 25 katastriüksuse ja lähiala detailplaneeringu koostamine ning kinnitati lähteseisukohad....
Info
01. maini – 30. maini 2025 toimus Järsi külas asuva "Riisimäe katastriüksuse ja lähiala" detailplaneeringu eskiisi (koostaja: OÜ Ilm Arhitekt, töö nr 0324, planeeringu ID 127431) avalik...
Kulli küla Pistriku vkt 28 kinnistu projekteerimistingimuste avalik väljapanek kaksikelamu püstitamiseks
Pistriku vkt 28 kinnistule (katastritunnusega 65101:002:0474) Kulli külas soovitakse anda ehitusõigus kaksikelamu püstitamiseks. Vastavalt Raasiku valla üldplaneeringule on tegemist...
Vallavalitsus ootab ettepanekuid Raasiku valla arengukava 2025–2035 kohta
Head vallakodanikud! Ootame teie sisulisi ettepanekuid Raasiku valla arengukava 2025–2035 kohta. Ettepanekud võivad olla sisulised täiendused, muudatusettepanekud eesmärkide või...
Hanketeade hanke „Arvutite ostmine Raasiku Vallavalitsusele ja hallatavatele asutustele“ kohta.
Riigihangete registris avaldati 30.06.2025 15:00 järgmine teade: Hanketeade hanke 297410, "„Arvutite ostmine Raasiku Vallavalitsusele ja hallatavatele asutustele"" kohta. Link...
Hanketeade hanke „Toiduainete ost Raasiku valla haridusasutustele õ/a 2025-2026 ning 2026/2027”
Riigihangete registris avaldati 30.06.2025 15:00 järgmine teade: Hanketeade hanke 297402, „Toiduainete ost Raasiku valla haridusasutustele õ/a 2025-2026 ning 2026/2027" kohta. Link...
Hanketeade hanke "Akustiliste toolide ja seisulaudade ost Raasiku kooli“ kohta.
Riigihangete registris avaldati 30.06.2025 15:00 järgmine teade: Hanketeade hanke 297408, "„Akustiliste toolide ja seisulaudade ost Raasiku kooli"" kohta. Link hanketeatele: ...
Raasiku Vallavolikogu kehtestas 2026.a. maamaksumäärad
Raasiku Vallavolikogu kehtestas 10.06.2025 määrusega nr 8 järgmised maamaksumäärad: 1) elamumaale ja maatulundusmaa õuemaa kõlvikule 0,50% maa maksustamishinnast aastas; 2) punktis 1...
Algatati Järsi külas asuva Unioru, Unimäe katastriüksuste ning lähiala detailplaneering
R aasiku Vallavalitsus teatab, et Raasiku Vallavolikogu 10. juuni 2025. a korraldusega nr 17 algatati Järsi külas asuva Unioru, Unimäe katastriüksuste ning lähiala detailplaneering. ...
Kutse avalikule aruelule
29.05. – 12.06.2025 toimus Aruküla alevikus Männiku tee 27 katastriüksuse ja lähiala detailplaneeringu (koostaja: Raasiku Vallavalitsus, Indrek Mikk volitatud arhitekt, tase 7, töö nr...
Hanketeade hanke "Pikavere Mõisakooli teise korruse puitlaudpõrandate taastusremont" kohta.
Riigihangete registris avaldati 16.06.2025 15:00 järgmine teade: Hanketeade hanke 296892, "Pikavere Mõisakooli teise korruse puitlaudpõrandate taastusremont" kohta. Link hanketeatele: ...
Hanketeade hanke "Pikavere Mõisakooli pargi hooldus" kohta.
Riigihangete registris avaldati 16.06.2025 15:00 järgmine teade: Hanketeade hanke 296130, "Pikavere Mõisakooli pargi hooldus" kohta. Link hanketeatele: ...
Liikluspindade ruumikuju ja kohanime määramine, katastriüksuste ja ehitiste lähiaadresside korrastamine
Vastavalt Raasiku Vallavolikogu 14.11.2023 määruse nr 17 „Kohanime määramise kord" § 4 lõikele 1 avalikustab Raasiku Vallavalitsus eelnõu „Raasiku vallas Järsi külas asuvate liikluspindade...
Kehtestati Raasiku alevikus asuva Pae 2a katastriüksuse ja lähiala detailplaneering
Raasiku Vallavalitsus teatab, et Raasiku Vallavalitsuse 26. mai 2025. a korraldusega nr 183 kehtestati Raasiku alevikus asuva Pae 2a katastriüksuse ja lähiala detailplaneering. Raasiku...
Volikogu istung toimub 10. juunil
Raasiku Vallavolikogu istung toimub 10. juunil 2025. a algusega kell 16.30 Raasiku vallamajas, 2. korruse saalis.
Raasiku mänguväljak saab veelgi vahvamaks
Raasiku Vallavalitsus on alustamas vahva arendusprojekti – "Raasiku mänguväljaku laiendamine ja edasiarendamine" elluviimisega, mis saab teoks tänu „LEADER – kogukonna juhitud kohalik areng"...
Igavere külas Linnumäe tee 8 kinnistu projekteerimistingimuste avalik väljapanek garaaži püstitamiseks
Linnumäe tee 8 kinnistule (katastritunnusega 65101:001:1177) Igavere külas soovitakse püstitada garaaž. Linnumäe kinnistu ja lähiala detailplaneering, mis on vastu võetud Raasiku...
Hange "Pikavere mõisakooli spordiväljaku rajamine"
Riigihangete registris avaldati 30.05.2025 15:00 järgmine teade: Hanketeade hanke 296126, "Pikavere mõisakooli spordiväljaku rajamine" kohta. Link hanketeatele: ...
Elroni sõiduplaani muudatused juunis
Elron annab teada, et Sõiduplaanid muutuvad 9.-15. juunini (välja arvatud 10.-11.06) ida- ja lõunasuunal. Kõik Tartu liini reisid on asendatud bussidega Jõgeva-Tartu vahel, hommikul ja...
Harju XXX maakaitsepäev toimub 23. juunil Kuusalus
22. juunil kell 16.00 toimub Loo alevikus Vabaduse Hiies võidutamme istutamise tseremoonia 23. juunil Kuusalus toimub kell 9.30 pärgade asetamine Valkla lahingu mälestuskivi juures,...
Liikluspindade määramine ja katastriüksuste lähiaadresside määramine
Vastavalt Raasiku Vallavolikogu 14.11.2023 määruse nr 17 § 4 lõikele 1 avalikustab Raasiku Vallavalitsus eelnõu „Raasiku vallas Aruküla alevikus liikluspinna Põllu tänav ruumikuju muutmine,...
Aruküla alevikus Piiri tn 5a kinnistu projekteerimistingimuste avalik väljapanek üksikelamu püstitamiseks
Piiri tn 5a kinnistule (katastritunnusega 65101:006:0078 ) Aruküla alevikus soovitakse püstitada üksikelamu. Raasiku valla üldplaneeringu järgi asub Piiri tn 5a kinnistu Aruküla alevikus...
Eelarve- ja majanduskomisjoni koosolek toimub 28. mail
Raasiku Vallavolikogu eelarve- ja majanduskomisjoni koosolek toimub kolmapäeval, 28.05.2025 kell 18:00 vallamaja kosolekute saalis Päevakorras: Raasiku Valla 2024. majandusaasta...
Planeeringute -ja keskkonna komisjon toimub 27. mail
Raasiku Vallavolikogu planeeringute -ja keskkonna komisjon toimub teisipäeval, 27. mail kell 17.00 vallamajas Päevakorras: Detailplaneeringu algatamine Unioru - Unimäe...
Haridus-, kultuuri, sotsiaal- ja spordikomisjoni koosolek toimub 26. mail
Raasiku Vallavolikogu haridus-, kultuuri, sotsiaal- ja spordikomisjoni koosolek toimub 26. mail 2025 algusega kell 17.00 vallamajas järgmise päevakorraga: Raasiku valla arengukava...
Raasiku ÜVK OSA I liikluskorralduse muudatus alates 20.05.2025 kuni 22.05.2025
Alates homsest 20.05.2025 kuni neljapäevani 22.05.2025 on Paju tn ja Tallinna mnt ristmik suletud. Ümbersõiduks kasutada Palju põik tänavat või Raasiku-Maardu teed. VI etapiga hakkab...
Raasiku vallavalitsus otsib tugiisikut 4-aastasele poisile
Tugiisiku ülesanneteks on: lapse toetamine õppetegevusel lasteaias, sh. lapse juhendamine ja motiveerimine, tähelepanu hoidmine, füüsiline abistamine, lapse toetamine eakaaslaste ja...
Raasiku valla kliima- ja energiakava avaseminar
Raasiku vald on koostamas kliima- ja energiakava, mille eesmärk on kujundada meie kogukonna kestlikum ja keskkonnasõbralikum tulevik. Ootame sind kaasa mõtlema! Avaseminar toimub 21. mai...
Aruküla alevikus asuva „Männiku tee 27 katastriüksuse ja lähiala“ detailplaneeringu vastuvõtmine ja avaliku väljapaneku korraldamine.
Raasiku vallavalitsus otsustab võtta vastu ja avalikustada Aruküla alevikus asuva Männiku tee 27 katastriüksuse ja lähiala detailplaneeringu (koostaja: Raasiku vallavalitsus, Indrek...
Aruküla alevikus asuva „Suvila tn 25 katastriüksuse ja lähiala“ detailplaneeringu vastuvõtmine ja avaliku väljapaneku korraldamine
Raasiku vallavalitsus otsustab võtta vastu ja avalikustada Aruküla alevikus asuva Suvila 25 katastriüksuse ja lähiala detailplaneeringu (koostaja: Ruumi Grupp OÜ). Detailplaneeringu...
Raasiku aleviku keskala detailplaneeringu eskiis arvamuste avaldamiseks
Raasiku vallavalitsuse eestvedamisel toimus 7. mail 2025 Raasiku rahvamajas Raasiku aleviku keskala detailplaneeringu eskiisi avalik tutvustus. Ootame Teie arvamusi 29. maini 2025...
Volikogu istung toimub 12.05.2025
Raasiku Vallavolikogu istung toimub esmaspäeval, 12. mail algusega kell 16.30 Arukülas, vallamaja 2. korruse koosolekute saalis.
Ehitusvõimalusega elamumaa kinnistu Arukülas - Suvila tn 24b
Raasiku Vallavalitsus müüb elektroonilisel enampakkumisel hoonestamata kinnistut asukohaga Harju maakond, Raasiku vald, Aruküla alevik, Suvila tn 24b, mille pindala on 1513 m2....
Raasiku Vallavalitsus algatas Kurgla külas asuva Rähni ja Lõokese katastriüksuste ja lähiala „Kurgla krossiraja“ detailplaneeringu.
Raasiku Vallavalitsus algatas 28. aprillil 2025 Kurgla külas asuva Rähni ja Lõokese katastriüksuste ja lähiala „Kurgla krossiraja" detailplaneeringu. Alal kehtib Raasiku Vallavalitsuse 25....
Raasiku Vallavalitsus algatas Perila külas, Kiili katastriüksuse ja lähiala detailplaneeringu.
Raasiku Vallavalitsus algatas 28. aprillil 2025 korraldusega nr. 149 Raasiku vallas, Perila külas, Kiili katastriüksuse ja lähiala detailplaneeringu. KuVa Kinnisvara OÜ juhatuse liige Ain...
Liikluskorraldus Aruküla alevikus Männiku teel muutub 05.05.2025
Raasiku vallavalitsus teavitab, et on väljastatud 20.01.2025 korraldus nr 24 „Ehituslubade väljastamine tehnovõrkude (külmaveetorustiku ja kanalisatsioonitorustiku) rajamiseks Aruküla alevikus...
Raasiku Vallavalitsus otsib oma meeskonda hooajalist heakorratöötajat
Raasiku Vallavalitsus otsib oma meeskonda heakorratöötajat, kes aitab hoida meie valla avalikud alad puhtad ja hooldatud. Töö on tähtajaline - kuni oktoobri lõpuni. Töö toimub vastavalt...
Eelarve- ja majanduskomisjon toimub 29. aprillil
Eelarve- ja majanduskomisjon toimub 29. aprillil algusega kell 18.00 Arukülas, vallamaja 2. korruse saalis algusega kell 18.00. Päevakorras: Munitsipaalmaade võõrandamine Maade...