Detailplaneeringud 2021
Männipõllu, Igavere detailplaneeringu avalik arutelu
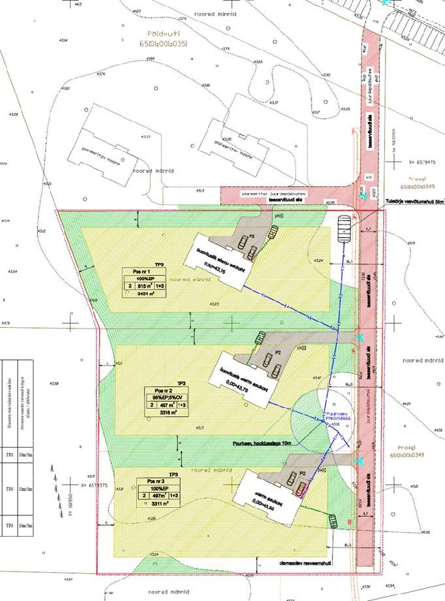
Raasiku Vallavalitsus korraldab Igavere küla Männipõllu katastriüksuse ja lähiala detailplaneeringu avalik arutelu 28. oktoobril 2021. a. algusega kell 18.00 Raasiku Vallavalitsuse teise korruse koosolekute saalis aadressil Tallinna mnt 24, Aruküla, Harjumaa. Planeeringu eesmärk on kolme elamukrundi moodustamine. Koosolekul arutatakse detailplaneeringu avalikustamise jooksul esitatud vastuväiteid. Avalikust arutelust saavad osa võtta kõik isikud. Detailplaneeringu materjalid on avalikus dokumendiregistris https://raasiku.kovtp.ee/dokumendid . Lisainfot saab küsida planeeringute spetsialistilt planeeringud@raasiku.ee või tel 5017483.
Otselink planeeringu toimikusse: http://atp.amphora.ee/raasikuvv/index.aspx?itm=135279
