Aruküla alevikus Tallinna mnt 21 kinnistul (katastritunnusega 65101:003:0597) soovitakse seadustada ehitusloakohustuslik abihoone, mis on püstitatud detailplaneeringuga määratud hoonestusalast...

Aruküla aleviku Tallinna mnt 21 kinnistu projekteerimistingimuste avalik väljapanek detailplaneeringuga määratud hoonestusala suurendamiseks ja abihoone püstitamiseks

Aruküla alevikus Tallinna mnt 21 kinnistul (katastritunnusega 65101:003:0597) soovitakse seadustada ehitusloakohustuslik abihoone, mis on püstitatud detailplaneeringuga määratud hoonestusalast...

Talve tee 3 kinnistule (katastritunnusega 65101:003:0710) soovitakse ehitada üksikelamu. Vastavalt Raasiku valla üldplaneeringule on tegemist Aruküla Männiku I alal asuva elamumaa...

Aruküla alevikus Talve tee 3 kinnistu projekteerimistingimuste avalik väljapanek üksikelamu ehitamiseks

Talve tee 3 kinnistule (katastritunnusega 65101:003:0710) soovitakse ehitada üksikelamu. Vastavalt Raasiku valla üldplaneeringule on tegemist Aruküla Männiku I alal asuva elamumaa...

Kadarpiku tee 6 kinnistule (katastritunnusega 65101:001:1154) soovitakse ehitada üksikelamu. Kadarpiku tee 6 kinnistu asub hoonestatud kinnistute kõrval ning sobitub kinnistu suuruselt antud...

Kalesi külas Kadarpiku tee 6 kinnistu projekteerimistingimuste avalik väljapanek üksikelamu ehitamiseks

Kadarpiku tee 6 kinnistule (katastritunnusega 65101:001:1154) soovitakse ehitada üksikelamu. Kadarpiku tee 6 kinnistu asub hoonestatud kinnistute kõrval ning sobitub kinnistu suuruselt antud...

Pistriku vkt 28 kinnistule (katastritunnusega 65101:002:0474) Kulli külas soovitakse anda ehitusõigus kaksikelamu püstitamiseks. Vastavalt  Raasiku valla üldplaneeringule on tegemist...

Kulli küla Pistriku vkt 28 kinnistu projekteerimistingimuste avalik väljapanek kaksikelamu püstitamiseks

Pistriku vkt 28 kinnistule (katastritunnusega 65101:002:0474) Kulli külas soovitakse anda ehitusõigus kaksikelamu püstitamiseks. Vastavalt  Raasiku valla üldplaneeringule on tegemist...

Linnumäe tee 8 kinnistule (katastritunnusega 65101:001:1177) Igavere külas soovitakse püstitada garaaž. Linnumäe kinnistu ja lähiala detailplaneering, mis on vastu võetud Raasiku...

Igavere külas Linnumäe tee 8 kinnistu projekteerimistingimuste avalik väljapanek garaaži püstitamiseks

Linnumäe tee 8 kinnistule (katastritunnusega 65101:001:1177) Igavere külas soovitakse püstitada garaaž. Linnumäe kinnistu ja lähiala detailplaneering, mis on vastu võetud Raasiku...

Piiri tn 5a kinnistule (katastritunnusega 65101:006:0078 ) Aruküla alevikus soovitakse püstitada üksikelamu. Raasiku valla üldplaneeringu järgi asub Piiri tn 5a kinnistu Aruküla alevikus...

Aruküla alevikus Piiri tn 5a kinnistu projekteerimistingimuste avalik väljapanek üksikelamu püstitamiseks

Piiri tn 5a kinnistule (katastritunnusega 65101:006:0078 ) Aruküla alevikus soovitakse püstitada üksikelamu. Raasiku valla üldplaneeringu järgi asub Piiri tn 5a kinnistu Aruküla alevikus...

Sügise tn 31 kinnistule (katastritunnusega 65101:003:0980) Aruküla alevikus soovitakse püstitada üksikelamu. Raasiku valla üldplaneeringu järgi asub Sügise tn 31 kinnistu Aruküla alevikus,...

Aruküla alevikus Sügise tn 31 kinnistu projekteerimistingimuste avalik väljapanek üksikelamu püstitamiseks

Sügise tn 31 kinnistule (katastritunnusega 65101:003:0980) Aruküla alevikus soovitakse püstitada üksikelamu. Raasiku valla üldplaneeringu järgi asub Sügise tn 31 kinnistu Aruküla alevikus,...

Salu tn 3 kinnistule (katastritunnusega 65101:001:1031) Järsi külas soovitakse ehitada kaksikelamu. Kinnistu pindala on 2378m². Raasiku valla üldplaneeringu järgi asub Salu tn 3 kinnistu...

Järsi külas Salu tn 3 kinnistu projekteerimistingimuste avalik väljapanek kaksikelamu ehitamiseks

Salu tn 3 kinnistule (katastritunnusega 65101:001:1031) Järsi külas soovitakse ehitada kaksikelamu. Kinnistu pindala on 2378m². Raasiku valla üldplaneeringu järgi asub Salu tn 3 kinnistu...

Maasika tn 1a kinnistule (katastritunnusega 65101:001:1050) soovitakse ehitada üksikelamu. Raasiku valla üldplaneeringu järgi asub Maasika tn 1a kinnistu Aruküla aleviku tiheasustusalal, kus...

Aruküla alevikus Maasika tn 1a kinnistu projekteerimistingimuste avalik väljapanek üksikelamu ehitamiseks

Maasika tn 1a kinnistule (katastritunnusega 65101:001:1050) soovitakse ehitada üksikelamu. Raasiku valla üldplaneeringu järgi asub Maasika tn 1a kinnistu Aruküla aleviku tiheasustusalal, kus...

Vääri tee 7 ja Vääri tee 14 kinnistutele soovitakse püstitada kaksikelamud. Kinnistutel kehtib Vääri I maaüksuse ja lähiala detailplaneering, mis on kehtestatud 09.10.2007 Raasiku...

Igavere küla Vääri tee 7 ja Vääri tee 14 kinnistute projekteerimistingimuste avalik väljapanek detailplaneeringu olemasolul

Vääri tee 7 ja Vääri tee 14 kinnistutele soovitakse püstitada kaksikelamud. Kinnistutel kehtib Vääri I maaüksuse ja lähiala detailplaneering, mis on kehtestatud 09.10.2007 Raasiku...

Tehase tee 39 kinnistul soovitakse lammutada olemasoleva laohoone ehitisregistri koodiga nr 121428516 ja selle asemele ehitada uus samas mahus laohoone. Olemasoleva laohoone ehitisealune pind on...

Raasiku aleviku Tehase tee 39 kinnistu projekteerimistingimuste avalik väljapanek

Tehase tee 39 kinnistul soovitakse lammutada olemasoleva laohoone ehitisregistri koodiga nr 121428516 ja selle asemele ehitada uus samas mahus laohoone. Olemasoleva laohoone ehitisealune pind on...

Projekteerimistingimuste määramine mobiilside tugijaama rajamiseks Raasiku vallas Kulli külas Heinapõllu tee 13 kinnistul Korralduse eelnõu Skeem

Projekteerimistingimuste määramine mobiilside tugijaama rajamiseks Raasiku vallas Kulli külas Heinapõllu tee 13 kinnistu

Projekteerimistingimuste määramine mobiilside tugijaama rajamiseks Raasiku vallas Kulli külas Heinapõllu tee 13 kinnistul Korralduse eelnõu Skeem

Metsatuka kinnistule soovitakse püstitada maapinnast 5,4 meetri kõrgune abihoone. Kinnistul kehtib Metsatuka ja Metsanuka kinnistute ning lähiala detailplaneering, mis on kehtestatud...

Igavere küla Metsatuka kinnistu projekteerimistingimuste avalik väljapanek detailplaneeringu olemasolul

Metsatuka kinnistule soovitakse püstitada maapinnast 5,4 meetri kõrgune abihoone. Kinnistul kehtib Metsatuka ja Metsanuka kinnistute ning lähiala detailplaneering, mis on kehtestatud...

Arukülas alevikus, Mõisa tee 5 kinnistul paikneva jäätmejaama laiendamiseks projekteerimistingimuste eelnõu  ja keskkonnamõju hindamise eelhinnangu  avalik väljapanek toimub...

Arukülas alevikus, Mõisa tee 5 kinnistul paikneva jäätmejaama laiendamiseks projekteerimistingimuste eelnõu ja keskkonnamõju hindamise eelhinnangu avalik väljapanek

Arukülas alevikus, Mõisa tee 5 kinnistul paikneva jäätmejaama laiendamiseks projekteerimistingimuste eelnõu  ja keskkonnamõju hindamise eelhinnangu  avalik väljapanek toimub...

Aruküla alevikus Suvila tn 24b kinnistu projekteerimistingimuste avalik väljapanek Aruküla alevikus Männiku I piirkonnas asuvale Suvila tn 24b kinnistule soovitakse ehitusõigust...

Aruküla alevikus Suvila tn 24b kinnistu projekteerimistingimuste avalik väljapanek

Aruküla alevikus Suvila tn 24b kinnistu projekteerimistingimuste avalik väljapanek Aruküla alevikus Männiku I piirkonnas asuvale Suvila tn 24b kinnistule soovitakse ehitusõigust...

Kulli küla Põllu tee 2 kinnistu projekteerimistingimuste avalik väljapanek detailplaneeringu olemasolul Põllu tee 2 kinnistul (65101:002:0521) on vajalik ehitisregistrisse kanda ja...

Kulli küla Põllu tee 2 kinnistu projekteerimistingimuste avalik väljapanek detailplaneeringu olemasolul

Kulli küla Põllu tee 2 kinnistu projekteerimistingimuste avalik väljapanek detailplaneeringu olemasolul Põllu tee 2 kinnistul (65101:002:0521) on vajalik ehitisregistrisse kanda ja...

Arukülas Sügise tn 1 kinnistu projekteerimistingimuste eelnõu avalik väljapanek toimub 17.06.-30.06.2024. Arukülas, Sügise tn 1 kinnistule kavandatakse ca 1500 m2 suurust avaliku kasutusega...

Arukülas Sügise tn 1 kinnistu projekteerimistingimuste eelnõu avalik väljapanek

Arukülas Sügise tn 1 kinnistu projekteerimistingimuste eelnõu avalik väljapanek toimub 17.06.-30.06.2024. Arukülas, Sügise tn 1 kinnistule kavandatakse ca 1500 m2 suurust avaliku kasutusega...

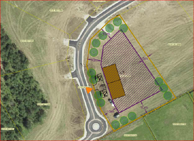
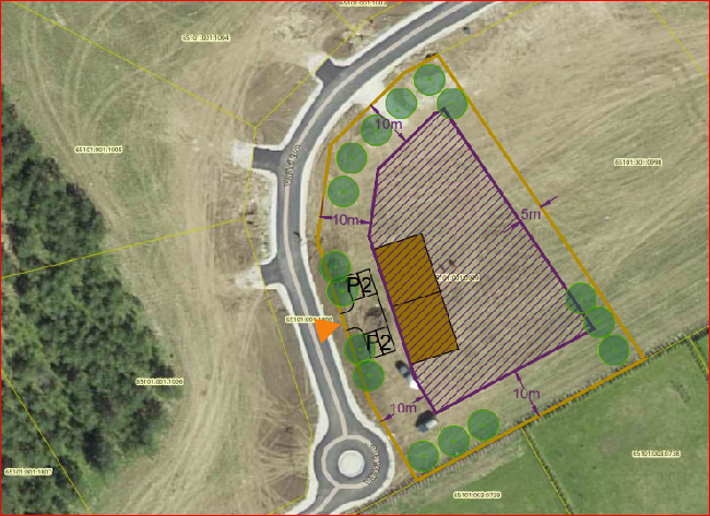
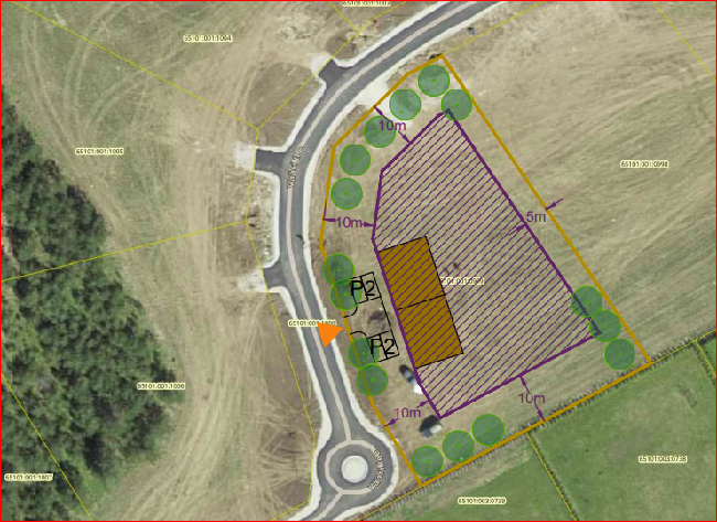
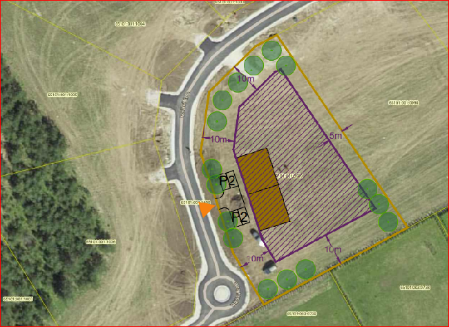
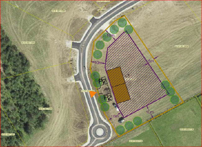
Põllu tee 5 kinnistul (65101:002:0528) soovitakse püstitada ehitusloakohustuslik abihoone ning selleks nihutada ja suurendada detailplaneeringuga määratud hoonestusala 10% ulatuses, suurendada...

Kulli küla Põllu tee 5 kinnistu projekteerimistingimuste avalik väljapanek detailplaneeringu olemasolul

Põllu tee 5 kinnistul (65101:002:0528) soovitakse püstitada ehitusloakohustuslik abihoone ning selleks nihutada ja suurendada detailplaneeringuga määratud hoonestusala 10% ulatuses, suurendada...

Siisikese tee 3 kinnistul soovitakse nihutada ja suurendada detailplaneeringuga määratud hoonestusala 10% piires. Kinnistul kehtib Siisikese maaüksuse detailplaneering, mis on kehtestatud...

Kalesi küla Siisikese tee 3 kinnistu projekteerimistingimuste avalik väljapanek detailplaneeringu olemasolul

Siisikese tee 3 kinnistul soovitakse nihutada ja suurendada detailplaneeringuga määratud hoonestusala 10% piires. Kinnistul kehtib Siisikese maaüksuse detailplaneering, mis on kehtestatud...

Raasiku alevikus asuvale Kivi tn 6 kinnistule (65101:008:0001) soovitakse püstitada ehitusloakohustuslik abihoone. Kinnistu on Ehitisregistri andmetel hoonestatud olnud üksikelamuga aastast...

Raasiku alevikus Kivi tn 6 kinnistu projekteerimistingimuste avalik väljapanek ehitusloakohustusliku abihoone püstitamiseks

Raasiku alevikus asuvale Kivi tn 6 kinnistule (65101:008:0001) soovitakse püstitada ehitusloakohustuslik abihoone. Kinnistu on Ehitisregistri andmetel hoonestatud olnud üksikelamuga aastast...