Raasiku Vallavalitsus algatas 15. septembril 2025 korraldusega nr. 335 Aruküla alevikus ja Kurgla külas Haavamäe katastriüksusel ja lähialal „Haavamäe" detailplaneeringu. Detailplaneeringuga...

Raasiku Vallavalitsus algatas Aruküla alevikus ja Kurgla külas Haavamäe katastriüksusel ja lähialal „Haavamäe“ detailplaneeringu.

Raasiku Vallavalitsus algatas 15. septembril 2025 korraldusega nr. 335 Aruküla alevikus ja Kurgla külas Haavamäe katastriüksusel ja lähialal „Haavamäe" detailplaneeringu. Detailplaneeringuga...

Kalesi külas asuva Kumma  (65101:003:0553)  ja Kaasiku  (65101:003:0552)  katastriüksuste ja lähiala detailplaneeringu vastuvõtmine ja avaliku väljapaneku korraldamine. ...

Kalesi külas asuva Kumma ja Kaasiku katastriüksuste ja lähiala detailplaneeringu vastuvõtmine ja avaliku väljapaneku korraldamine

Kalesi külas asuva Kumma  (65101:003:0553)  ja Kaasiku  (65101:003:0552)  katastriüksuste ja lähiala detailplaneeringu vastuvõtmine ja avaliku väljapaneku korraldamine. ...

Raasiku Vallavalitsus otsustab võtta vastu ja avalikustada Aruküla alevikus   asuva "  Võidu 9 katastriüksuse ja lähiala  " detailplaneeringu (koostaja: Arhitektuuribüroo...

Aruküla alevikus asuva Võidu 9 katastriüksuse ja lähiala detailplaneeringu vastuvõtmine ja avaliku väljapaneku korraldamine

Raasiku Vallavalitsus otsustab võtta vastu ja avalikustada Aruküla alevikus   asuva "  Võidu 9 katastriüksuse ja lähiala  " detailplaneeringu (koostaja: Arhitektuuribüroo...

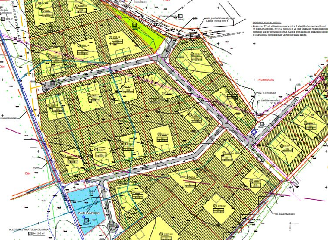
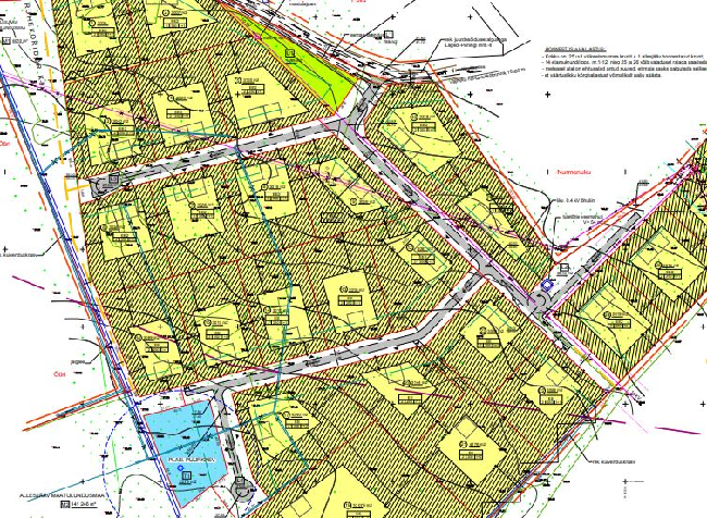
Raasiku Vallavalitsus teatab, et Raasiku Vallavalitsuse 01. septembri 2025. a korraldusega nr 313 kehtestati Aruküla alevikus asuva Männiku tee 27 katastriüksuse ja lähiala detailplaneering. ...

Kehtestati Aruküla alevikus asuva Männiku tee 27 katastriüksuse ja lähiala detailplaneering

Raasiku Vallavalitsus teatab, et Raasiku Vallavalitsuse 01. septembri 2025. a korraldusega nr 313 kehtestati Aruküla alevikus asuva Männiku tee 27 katastriüksuse ja lähiala detailplaneering. ...

Raasiku Vallavalitsus teatab, et algatas 04. augustil 2025 korraldusega nr. 277 Igavere külas, Kasteheina ja Piipheina katastriüksuste ja lähiala detailplaneeringu. Detailplaneeringuga...

Kasteheina ja Piipheina katastriüksuste ja lähiala detailplaneeringu algatamine

Raasiku Vallavalitsus teatab, et algatas 04. augustil 2025 korraldusega nr. 277 Igavere külas, Kasteheina ja Piipheina katastriüksuste ja lähiala detailplaneeringu. Detailplaneeringuga...

R aasiku Vallavalitsus teatab, et  Raasiku Vallavolikogu 10. juuni 2025. a korraldusega nr 17 algatati Järsi külas asuva Unioru, Unimäe katastriüksuste ning lähiala detailplaneering. ...

Algatati Järsi külas asuva Unioru, Unimäe katastriüksuste ning lähiala detailplaneering

R aasiku Vallavalitsus teatab, et  Raasiku Vallavolikogu 10. juuni 2025. a korraldusega nr 17 algatati Järsi külas asuva Unioru, Unimäe katastriüksuste ning lähiala detailplaneering. ...

Raasiku Vallavalitsus teatab, et Raasiku Vallavalitsuse 26. mai 2025. a korraldusega nr 183 kehtestati Raasiku alevikus asuva Pae 2a katastriüksuse ja lähiala detailplaneering. Raasiku...

Kehtestati Raasiku alevikus asuva Pae 2a katastriüksuse ja lähiala detailplaneering

Raasiku Vallavalitsus teatab, et Raasiku Vallavalitsuse 26. mai 2025. a korraldusega nr 183 kehtestati Raasiku alevikus asuva Pae 2a katastriüksuse ja lähiala detailplaneering. Raasiku...

  Raasiku vallavalitsus otsustab võtta vastu ja avalikustada Aruküla alevikus asuva Männiku tee 27 katastriüksuse ja lähiala detailplaneeringu (koostaja: Raasiku vallavalitsus, Indrek...

Aruküla alevikus asuva „Männiku tee 27 katastriüksuse ja lähiala“ detailplaneeringu vastuvõtmine ja avaliku väljapaneku korraldamine.

  Raasiku vallavalitsus otsustab võtta vastu ja avalikustada Aruküla alevikus asuva Männiku tee 27 katastriüksuse ja lähiala detailplaneeringu (koostaja: Raasiku vallavalitsus, Indrek...

Raasiku vallavalitsus otsustab võtta vastu ja avalikustada Aruküla alevikus asuva Suvila 25 katastriüksuse ja lähiala detailplaneeringu (koostaja: Ruumi Grupp OÜ). Detailplaneeringu...

Aruküla alevikus asuva „Suvila tn 25 katastriüksuse ja lähiala“ detailplaneeringu vastuvõtmine ja avaliku väljapaneku korraldamine

Raasiku vallavalitsus otsustab võtta vastu ja avalikustada Aruküla alevikus asuva Suvila 25 katastriüksuse ja lähiala detailplaneeringu (koostaja: Ruumi Grupp OÜ). Detailplaneeringu...

Raasiku Vallavalitsus algatas 28. aprillil 2025 Kurgla külas asuva Rähni ja Lõokese katastriüksuste ja lähiala „Kurgla krossiraja" detailplaneeringu. Alal kehtib Raasiku Vallavalitsuse 25....

Raasiku Vallavalitsus algatas Kurgla külas asuva Rähni ja Lõokese katastriüksuste ja lähiala „Kurgla krossiraja“ detailplaneeringu.

Raasiku Vallavalitsus algatas 28. aprillil 2025 Kurgla külas asuva Rähni ja Lõokese katastriüksuste ja lähiala „Kurgla krossiraja" detailplaneeringu. Alal kehtib Raasiku Vallavalitsuse 25....

Raasiku Vallavalitsus algatas 28. aprillil 2025 korraldusega nr. 149 Raasiku vallas, Perila külas, Kiili katastriüksuse ja lähiala detailplaneeringu. KuVa Kinnisvara OÜ juhatuse liige Ain...

Raasiku Vallavalitsus algatas Perila külas, Kiili katastriüksuse ja lähiala detailplaneeringu.

Raasiku Vallavalitsus algatas 28. aprillil 2025 korraldusega nr. 149 Raasiku vallas, Perila külas, Kiili katastriüksuse ja lähiala detailplaneeringu. KuVa Kinnisvara OÜ juhatuse liige Ain...

Raasiku Vallavalitsus otsustab avalikustada ja korraldada avalik väljapanek Järsi külas asuva "Riisimäe katastriüksuse ja lähiala" detailplaneeringu (Autor: OÜ Ilm Arhitekt, töö nr 0324,...

Järsi külas asuva “Riisimäe katastriüksuse ja lähiala” detailplaneeringu avalik väljapanek

Raasiku Vallavalitsus otsustab avalikustada ja korraldada avalik väljapanek Järsi külas asuva "Riisimäe katastriüksuse ja lähiala" detailplaneeringu (Autor: OÜ Ilm Arhitekt, töö nr 0324,...

Raasiku Vallavalitsus otsustab võtta vastu ja avalikustada Raasiku alevikus asuva " Pae tn 2a    katastriüksuse ja lähiala" detailplaneeringu (Autor: Casa Planeeringud OÜ, töö nr...

Raasiku alevikus asuva Pae tn 2a katastriüksuse ja lähiala detailplaneeringu vastuvõtmine ja avaliku väljapaneku korraldamine.

Raasiku Vallavalitsus otsustab võtta vastu ja avalikustada Raasiku alevikus asuva " Pae tn 2a    katastriüksuse ja lähiala" detailplaneeringu (Autor: Casa Planeeringud OÜ, töö nr...

Raasiku Vallavalitsus kehtestas 10.03.2025 korraldusega nr. 90 Igavere külas, Lehise katastriüksuse ja lähiala detailplaneeringu. Detailplaneeringuga jagatakse Lehise...

Igavere külas, Lehise katastriüksuse ja lähiala detailplaneeringu kehtestamine

Raasiku Vallavalitsus kehtestas 10.03.2025 korraldusega nr. 90 Igavere külas, Lehise katastriüksuse ja lähiala detailplaneeringu. Detailplaneeringuga jagatakse Lehise...

Raasiku Vallavalitsus kehtestas  10.03.2025 korraldusega nr. 91 Raasiku alevikus, Meierei 34 katastriüksuse ja lähiala detailplaneeringu. Planeeringuala suurus on ca 0,45 ha....

Raasiku alevikus, Meierei 34 katastriüksuse ja lähiala detailplaneeringu kehtestamine

Raasiku Vallavalitsus kehtestas  10.03.2025 korraldusega nr. 91 Raasiku alevikus, Meierei 34 katastriüksuse ja lähiala detailplaneeringu. Planeeringuala suurus on ca 0,45 ha....

Raasiku Vallavalitsus kehtestas  25.02.2025 korraldusega  nr. 81 Kurgla külas asuva Rähni ja Lõokese katastriüksuste ja lähiala „Kurgla krossiraja" detailplaneeringu. ...

Kurgla külas asuva Rähni ja Lõokese katastriüksuste ja lähiala „Kurgla krossiraja“ detailplaneeringu kehtestamine

Raasiku Vallavalitsus kehtestas  25.02.2025 korraldusega  nr. 81 Kurgla külas asuva Rähni ja Lõokese katastriüksuste ja lähiala „Kurgla krossiraja" detailplaneeringu. ...

Raasiku vallavolikogu 11.02.2025 otsusega nr 6 tunnistati kehtetuks Kurgla külas Kraavikääru kinnistu detailplaneering.  Raasiku vallavolikogu 10.06.2008  otsusega nr 49 kehtestati...

Tunnistati kehtetuks Kurgla külas Kraavikääru kinnistu detailplaneering

Raasiku vallavolikogu 11.02.2025 otsusega nr 6 tunnistati kehtetuks Kurgla külas Kraavikääru kinnistu detailplaneering.  Raasiku vallavolikogu 10.06.2008  otsusega nr 49 kehtestati...

Raasiku vallavolikogu 11.02.2025 otsusega nr 5 tunnistati osaliselt kehtetuks Igavere külas Linnumäe kinnistu ja lähiala detailplaneering Linnumäe tee 5 (65101:003:0659) kinnistu osas. ...

Igavere külas Linnumäe kinnistu ja lähiala detailplaneering tunnistati osaliselt kehtetuks Linnumäe tee 5 kinnistu osas

Raasiku vallavolikogu 11.02.2025 otsusega nr 5 tunnistati osaliselt kehtetuks Igavere külas Linnumäe kinnistu ja lähiala detailplaneering Linnumäe tee 5 (65101:003:0659) kinnistu osas. ...

Raasiku vallavolikogu 11.02.2025 otsusega nr 4 tunnistati osaliselt kehtetuks Kulli külas Pärtli maaüksuse detailplaneering Pistriku vkt 28 (65101:002:0474) kinnistu osas.  Raasiku...

Kulli külas Pärtli maaüksuse detailplaneering tunnistati osaliselt kehtetuks Pistriku vkt 28 kinnistu osas

Raasiku vallavolikogu 11.02.2025 otsusega nr 4 tunnistati osaliselt kehtetuks Kulli külas Pärtli maaüksuse detailplaneering Pistriku vkt 28 (65101:002:0474) kinnistu osas.  Raasiku...

Raasiku Vallavalitsus otsustab võtta vastu ja avalikustada Igavere külas asuva "Hiirekõrva katastriüksuse ja lähiala" detailplaneeringu (Autor: OÜ Buune Projekt, töö nr 2020121182, planeeringu...

Igavere külas asuva „Hiirekõrva katastriüksuse ja lähiala“ detailplaneeringu vastuvõtmine ja avaliku väljapaneku korraldamine

Raasiku Vallavalitsus otsustab võtta vastu ja avalikustada Igavere külas asuva "Hiirekõrva katastriüksuse ja lähiala" detailplaneeringu (Autor: OÜ Buune Projekt, töö nr 2020121182, planeeringu...