Tehase tee 39 kinnistul soovitakse lammutada olemasoleva laohoone ehitisregistri koodiga nr 121428516 ja selle asemele ehitada uus samas mahus laohoone. Olemasoleva laohoone ehitisealune pind on...

Raasiku aleviku Tehase tee 39 kinnistu projekteerimistingimuste avalik väljapanek

Tehase tee 39 kinnistul soovitakse lammutada olemasoleva laohoone ehitisregistri koodiga nr 121428516 ja selle asemele ehitada uus samas mahus laohoone. Olemasoleva laohoone ehitisealune pind on...

Raasiku Vallavolikogu algatas 10. detsembril 2024 otsusega nr. 25 Järsi külas, Riisimäe katastriüksuse ja lähiala detailplaneeringu. Detailplaneeringuga kavandatakse üks kuni 2-korruseline...

Raasiku Vallavolikogu algatas Järsi külas, Riisimäe katastriüksuse ja lähiala detailplaneeringu.

Raasiku Vallavolikogu algatas 10. detsembril 2024 otsusega nr. 25 Järsi külas, Riisimäe katastriüksuse ja lähiala detailplaneeringu. Detailplaneeringuga kavandatakse üks kuni 2-korruseline...

Raasiku Vallavalitsus otsustab võtta vastu ja avalikustada Igavere külas asuva Lehise katastriüksuse ja lähiala detailplaneeringu (Autor: Ruumi Grupp OÜ, töö nr DP-17/01-2022). ...

Igavere külas asuva Lehise katastriüksuse ja lähiala detailplaneeringu vastuvõtmine ja avalikustamine ja avaliku väljapaneku korraldamine.

Raasiku Vallavalitsus otsustab võtta vastu ja avalikustada Igavere külas asuva Lehise katastriüksuse ja lähiala detailplaneeringu (Autor: Ruumi Grupp OÜ, töö nr DP-17/01-2022). ...

Raasiku Vallavalitsus otsustab võtta vastu ja avalikustada Kurgla külas asuva Rähni ja Lõokese katastriüksuste ja lähiala „Kurgla krossiraja" detailplaneeringu (Autor: Raasiku Vallavalitsus, töö...

Kurgla külas asuva Rähni ja Lõokese katastriüksuste ja lähiala „Kurgla krossiraja“ detailplaneeringu vastuvõtmine ja avaliku väljapaneku korraldamine

Raasiku Vallavalitsus otsustab võtta vastu ja avalikustada Kurgla külas asuva Rähni ja Lõokese katastriüksuste ja lähiala „Kurgla krossiraja" detailplaneeringu (Autor: Raasiku Vallavalitsus, töö...

Raasiku Vallavalitsus algatas 18. novembri 2024 korraldusega nr. 443 Aruküla alevikus, Suvila tn. 25 katastriüksuse ja lähiala detailplaneeringu. Detailplaneeringu algataja, koostamise...

Raasiku Vallavalitsus algatas Aruküla alevikus, Suvila tn. 25 katastriüksuse ja lähiala detailplaneeringu.

Raasiku Vallavalitsus algatas 18. novembri 2024 korraldusega nr. 443 Aruküla alevikus, Suvila tn. 25 katastriüksuse ja lähiala detailplaneeringu. Detailplaneeringu algataja, koostamise...

Raasiku Vallavalitsus algatas 11. novembri 2024 korraldusega nr. 433 Aruküla alevikus, Võidu tn.9 katastriüksuse ja lähiala detailplaneeringu. Detailplaneeringu algataja, koostamise...

Raasiku Vallavalitsus algatas 11. novembri 2024 korraldusega nr. 433 Aruküla alevikus, Võidu tn.9 katastriüksuse ja lähiala detailplaneeringu.

Raasiku Vallavalitsus algatas 11. novembri 2024 korraldusega nr. 433 Aruküla alevikus, Võidu tn.9 katastriüksuse ja lähiala detailplaneeringu. Detailplaneeringu algataja, koostamise...

Raasiku Vallavalitsus algatas 14. oktoobril 2024 korraldusega nr. 408 Aruküla alevikus, Männiku tee 27 katastriüksuse ja lähiala detailplaneeringu. Detailplaneeringu algataja, koostaja,...

Aruküla alevikus, Männiku tee 27 katastriüksuse ja lähiala detailplaneeringu algatamine.

Raasiku Vallavalitsus algatas 14. oktoobril 2024 korraldusega nr. 408 Aruküla alevikus, Männiku tee 27 katastriüksuse ja lähiala detailplaneeringu. Detailplaneeringu algataja, koostaja,...

Raasiku Vallavalitsus teatab, et Raasiku Vallavalitsuse 14. oktoobri 2024. a korraldusega nr 407 kehtestati Aruküla alevikus asuva Linnaku katastriüksuse ja lähiala detailplaneering. ...

Aruküla alevikus asuva Linnaku katastriüksuse ja lähiala detailplaneeringu kehtestamine

Raasiku Vallavalitsus teatab, et Raasiku Vallavalitsuse 14. oktoobri 2024. a korraldusega nr 407 kehtestati Aruküla alevikus asuva Linnaku katastriüksuse ja lähiala detailplaneering. ...

Raasiku Vallavalitsus algatas 30. septembril 2024 korraldusega nr. 380 Raasiku alevikus, Tehase tee 28b katastriüksuse ja lähiala detailplaneeringu. Alana Capital OÜ (esindaja Aleksandr...

Raasiku alevikus, Tehase tee 28b katastriüksuse ja lähiala detailplaneeringu algatamine.

Raasiku Vallavalitsus algatas 30. septembril 2024 korraldusega nr. 380 Raasiku alevikus, Tehase tee 28b katastriüksuse ja lähiala detailplaneeringu. Alana Capital OÜ (esindaja Aleksandr...

Raasiku Vallavalitsus teatab, et  Raasiku Vallavalitsuse 30. septembri 2024. a korraldusega nr 379 kehtestati Kalesi külas asuva Värvu katastriüksuse ja lähiala detailplaneering. Värvu...

Kalesi külas asuva Värvu katastriüksuse ja lähiala detailplaneeringu kehtestamine

Raasiku Vallavalitsus teatab, et  Raasiku Vallavalitsuse 30. septembri 2024. a korraldusega nr 379 kehtestati Kalesi külas asuva Värvu katastriüksuse ja lähiala detailplaneering. Värvu...

Raasiku Vallavalitsus teatab, et Raasiku Vallavalitsuse 16. septembri 2024. a korraldusega nr 370 kehtestati Järsi külas asuva Riisi katastriüksuse ja lähiala detailplaneering. Raasiku...

Järsi külas asuva Riisi katastriüksuse ja lähiala detailplaneeringu kehtestamine

Raasiku Vallavalitsus teatab, et Raasiku Vallavalitsuse 16. septembri 2024. a korraldusega nr 370 kehtestati Järsi külas asuva Riisi katastriüksuse ja lähiala detailplaneering. Raasiku...

Raasiku Vallavalitsus teatab, et Raasiku Vallavalitsuse 21. augusti 2024. a korraldusega nr 327 kehtestati Järsi külas asuva Kakulaane katastriüksuse ja lähiala detailplaneering. Raasiku...

Järsi külas asuva Kakulaane katastriüksuse ja lähiala detailplaneeringu kehtestamine

Raasiku Vallavalitsus teatab, et Raasiku Vallavalitsuse 21. augusti 2024. a korraldusega nr 327 kehtestati Järsi külas asuva Kakulaane katastriüksuse ja lähiala detailplaneering. Raasiku...

Kulli külas asuva „Pistriku vkt 19 katastriüksuse ja lähiala detailplaneeringu" detailplaneeringu vastuvõtmine ja avaliku väljapaneku korraldamine. Raasiku Vallavalitsus otsustab võtta...

Kulli külas asuva „Pistriku vkt 19 katastriüksuse ja lähiala detailplaneeringu“ detailplaneeringu vastuvõtmine ja avaliku väljapaneku korraldamine

Kulli külas asuva „Pistriku vkt 19 katastriüksuse ja lähiala detailplaneeringu" detailplaneeringu vastuvõtmine ja avaliku väljapaneku korraldamine. Raasiku Vallavalitsus otsustab võtta...

Järsi külas asuva „Riisi katastriüksuse ja lähiala detailplaneeringu" detailplaneeringu vastuvõtmine ja avaliku väljapaneku korraldamine. Raasiku Vallavalitsus otsustas võtta vastu ja...

Järsi külas asuva „Riisi katastriüksuse ja lähiala detailplaneeringu“ detailplaneeringu vastuvõtmine ja avaliku väljapaneku korraldamine

Järsi külas asuva „Riisi katastriüksuse ja lähiala detailplaneeringu" detailplaneeringu vastuvõtmine ja avaliku väljapaneku korraldamine. Raasiku Vallavalitsus otsustas võtta vastu ja...

Raasiku Vallavalitsus otsustab võtta vastu ja avalikustada Järsi külas asuva "Kakulaane katastriüksuse ja lähiala" detailplaneeringu (Autor: Arhitektuuribüroo Heiki Taras OÜ, töö...

Järsi külas asuva „Kakulaane katastriüksuse ja lähiala“ detailplaneeringu vastuvõtmine ja avaliku väljapaneku korraldamine

Raasiku Vallavalitsus otsustab võtta vastu ja avalikustada Järsi külas asuva "Kakulaane katastriüksuse ja lähiala" detailplaneeringu (Autor: Arhitektuuribüroo Heiki Taras OÜ, töö...

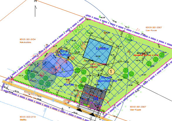
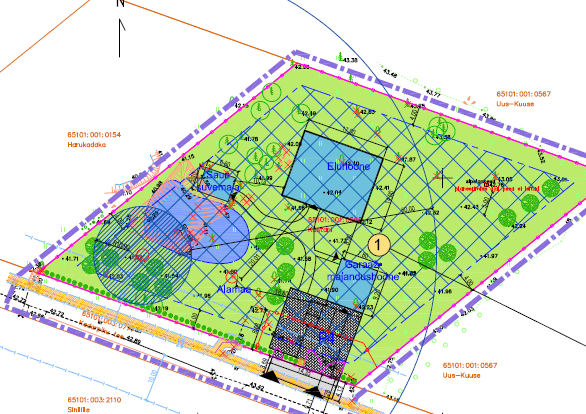
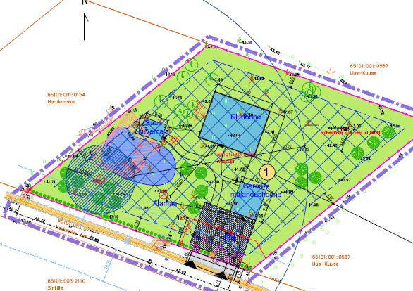
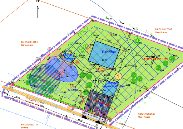
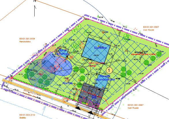
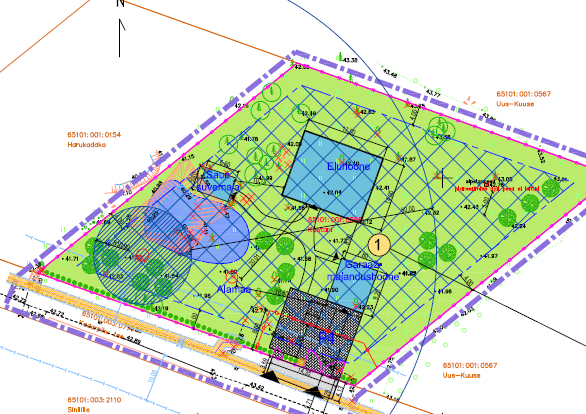
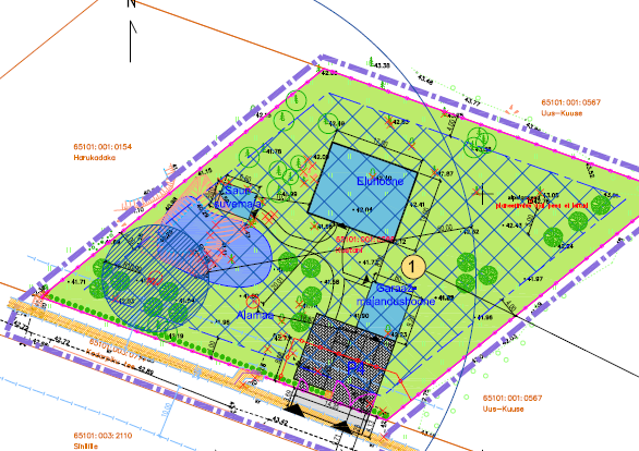
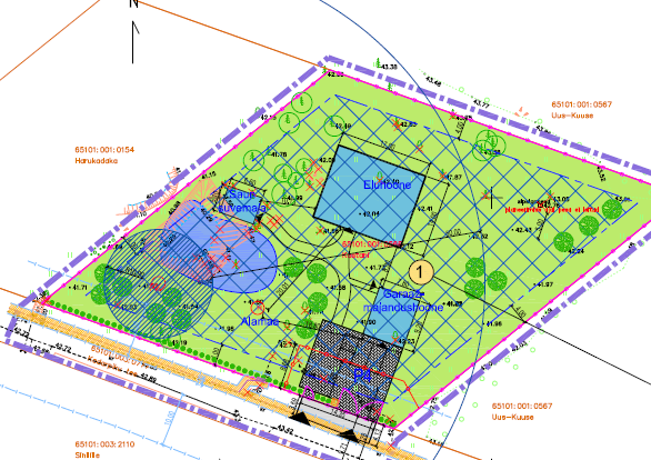
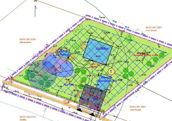
  Raasiku Vallavalitsus otsustab võtta vastu ja avalikustada Igavere külas asuva "Sinilille katastriüksuse ja lähiala" detailplaneeringu (Autor: Skepast&Puhkim OÜ, töö nr 2021-0017,...

Igavere külas asuva „Sinilille katastriüksuse ja lähiala“ detailplaneeringu vastuvõtmine ja avaliku väljapaneku korraldamine

  Raasiku Vallavalitsus otsustab võtta vastu ja avalikustada Igavere külas asuva "Sinilille katastriüksuse ja lähiala" detailplaneeringu (Autor: Skepast&Puhkim OÜ, töö nr 2021-0017,...

Vindi tee 3 kinnistul soovitakse laiendada olemasolevat üksikelamut üle 33% selle esialgu kavandatud mahust. Olemasolev  üksikelamu asub  osaliselt detailplaneeringuga määratud...

Kulli küla Vindi tee 3 kinnistu projekteerimistingimuste avalik väljapanek detailplaneeringu olemasolul

Vindi tee 3 kinnistul soovitakse laiendada olemasolevat üksikelamut üle 33% selle esialgu kavandatud mahust. Olemasolev  üksikelamu asub  osaliselt detailplaneeringuga määratud...

Raasiku Vallavalitsus teatab, et Raasiku Vallavalitsuse 29.01.2024 korraldusega nr 36 kehtestati Härma külas Kassiurva kinnistu ja lähiala detailplaneering. Kinnistu omaniku poolt...

Kehtestati Härma külas Kassiurva kinnistu ja lähiala detailplaneering

Raasiku Vallavalitsus teatab, et Raasiku Vallavalitsuse 29.01.2024 korraldusega nr 36 kehtestati Härma külas Kassiurva kinnistu ja lähiala detailplaneering. Kinnistu omaniku poolt...

Raasiku Vallavalitsuse 05.02.2024 korraldusega nr 43 võeti vastu Kalesi külas, Kastani kinnistu ja lähiala detailplaneering ja suunati avalikule väljapanekule 13.03.-27.03.2024 ...

Võeti vastu Kalesi külas, Kastani kinnistu ja lähiala detailplaneering ja suunati avalikule väljapanekule

Raasiku Vallavalitsuse 05.02.2024 korraldusega nr 43 võeti vastu Kalesi külas, Kastani kinnistu ja lähiala detailplaneering ja suunati avalikule väljapanekule 13.03.-27.03.2024 ...

Raasiku Vallavalitsuse 29.01. 2024 korraldusega nr 34 algatati Kulli külas Pistriku vkt 19  detailplaneeringu koostamine ja kinnitati lähteseisukohad . Planeeritav ala suurus...

Algatati Kulli külas Pistriku vkt 19 detailplaneeringu koostamine ja kinnitati lähteseisukohad

Raasiku Vallavalitsuse 29.01. 2024 korraldusega nr 34 algatati Kulli külas Pistriku vkt 19  detailplaneeringu koostamine ja kinnitati lähteseisukohad . Planeeritav ala suurus...