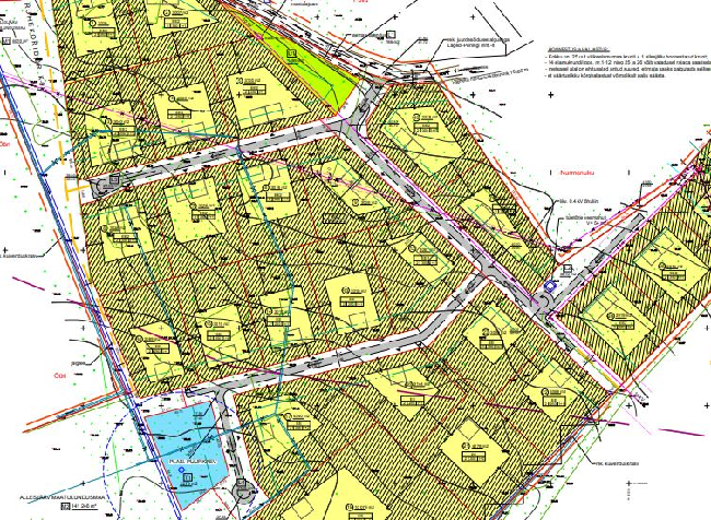
Kulli külas Pärtli maaüksuse detailplaneering tunnistati osaliselt kehtetuks Pistriku vkt 28 kinnistu osas
Raasiku vallavolikogu 11.02.2025 otsusega nr 4 tunnistati osaliselt kehtetuks Kulli külas Pärtli maaüksuse detailplaneering Pistriku vkt 28 (65101:002:0474) kinnistu osas. Raasiku vallavolikogu 8.08.2006 otsusega nr 64 kehtestati Kulli külas Pärtli kinnistu detailplaneering. Detailplaneeringuga kavandati alale elamurajoon 26 elamumaa kinnistuga, üks tootmismaa kinnistu puurkaevu rajamiseks, üks sotsiaalmaa kinnistu, neli transpordimaa kinnistut ning ülejäänud alast moodustab kaks maatulundusmaa kinnistut. Planeering on valdavalt realiseeritud. Pistriku vkt 28 kinnistule on kantud Raasiku valla eelmise üldplaneeringu alusel, (kehtestatud 2005. aastal) rohekoridori R9 piir, mis on uue üldplaneeringuga (kehtestatud 2020. aastal) selles piirkonnas muutunud. Pistriku vkt 28 paikneb väljaspool rohevõrgustiku ala. Samuti on muudetud Pärtli maaüksusele detailplaneeringuga planeeritud kergtee asukohta. Kergliiklustee on kavandatud tiheasutuspiirkondade ühendusteena 11300 Lagedi-Aruküla-Peningi tee kõrvale. Pistriku vkt 28 kinnistu läänepiiri ääres paikneb olemasolev eelvooluga kuivenduskraav, mis on seotud maaparandussüsteemidega. Nimetatud kraav säilitatakse muutumatul kujul. Pistriku vkt 28 kinnistu on maatulundusmaa sihtotstarbeline ja munitsipaalomandis. Piirangutest vabale osale oleks mõistlik moodustada elamumaa sihtotstarbelised kinnistud, piirkonda sobivate üksik- või kaksikelamu ehitusõigusega. Asjaosalised ja ametid ei ole esitanud vastuväiteid planeeringu osaliseks kehtetuks tunnistamise eelnõule. Detailplaneeringu osaline kehtetuks tunnistamine Pistriku vkt 28 (65101:002:0474) katastriüksusel ei kahjusta avalikke huve ega takista planeeringu terviklahenduse elluviimist pärast detailplaneeringu osaliselt kehtetuks tunnistamist. Dokumentidega on võimalik tutvuda Raasiku valla kodulehel avalikus dokumendiregistris https://atp.amphora.ee/raasikuvv/index.aspx?itm=102744